Appartamento Poreč, Luka, Parenzo

€ 550.000
5
166 m²
3+
No

Nota

Annuncio aggiornato il 24/02/2026
Descrizione

This description has been translated automatically and may not be accurate

riferimento: 6004

POREČ, APPARTAMENTO TRILIVELLO CON QUATTRO CAMERE VICINO AL CENTRO

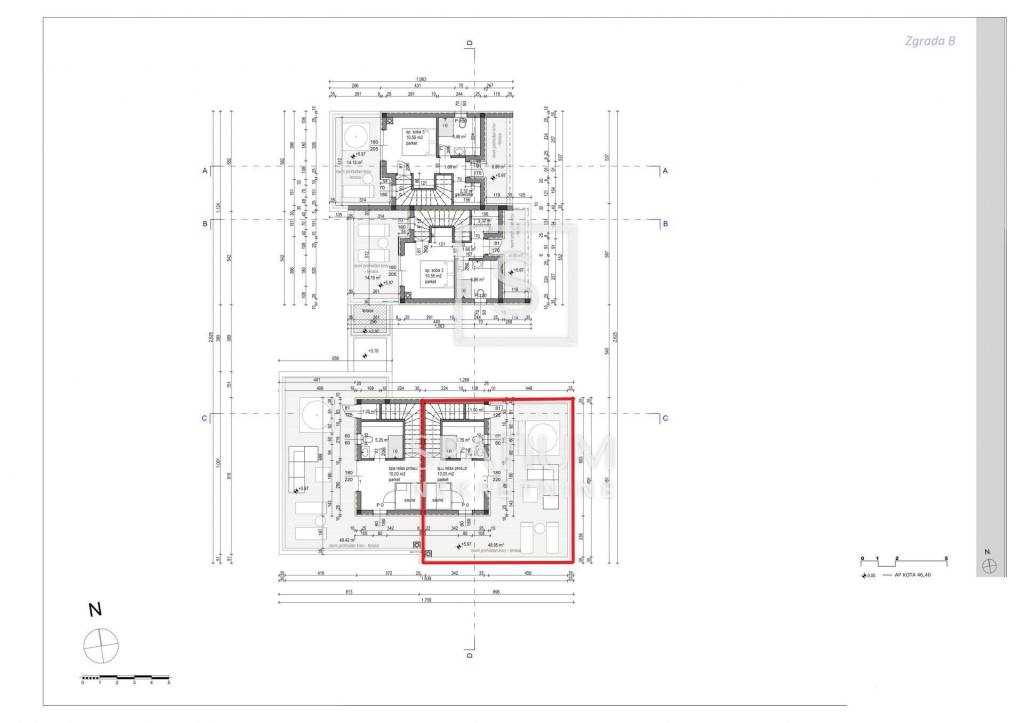
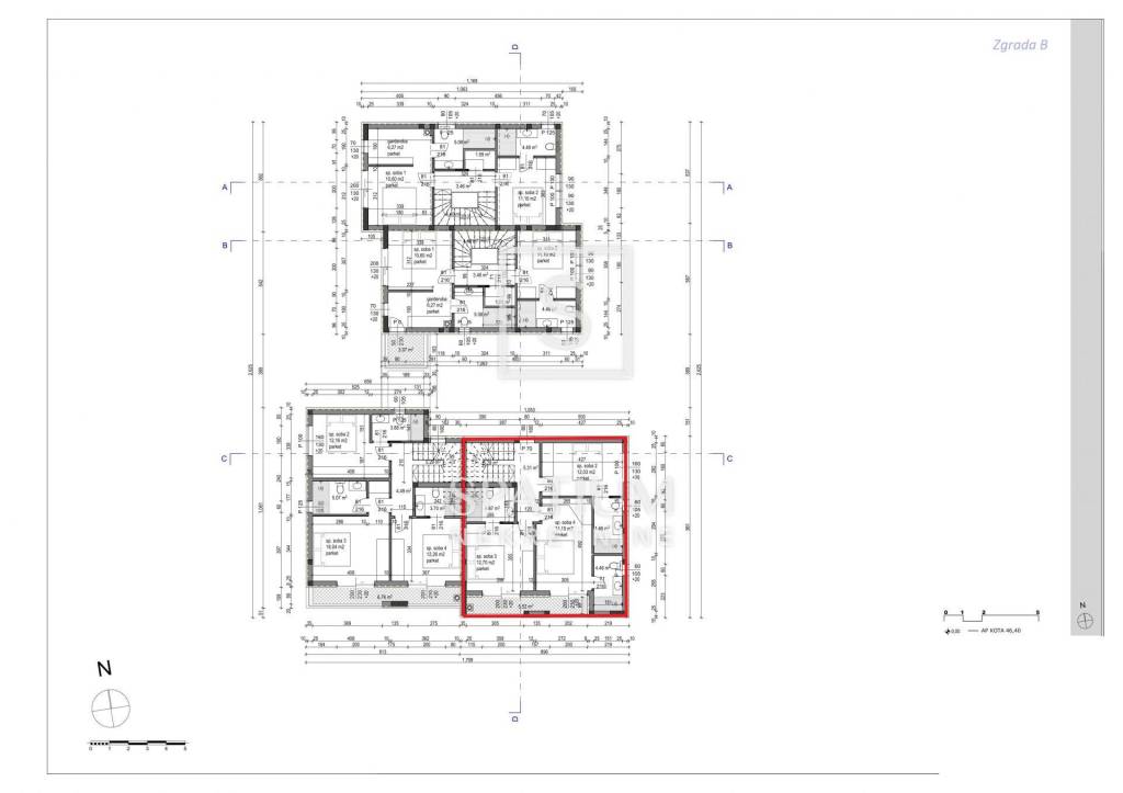
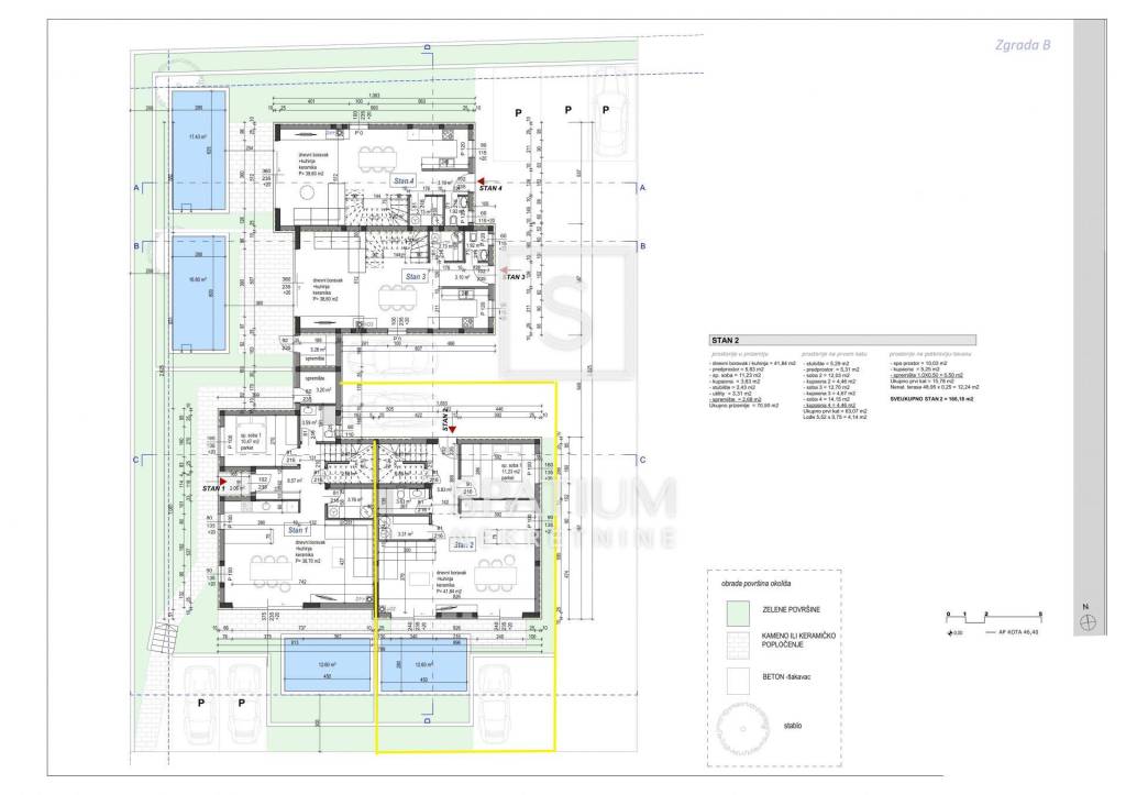
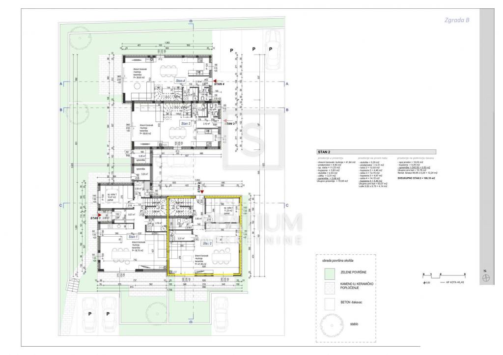
POREČ, In vendita un appartamento su tre piani, con una superficie complessiva di 166 m², situato in una posizione privilegiata a soli 2 km dal centro di Poreč. L’immobile è ideale per famiglie, grazie al design contemporaneo e alla disposizione funzionale degli ambienti.

Piano Terra: Il piano terra comprende soggiorno con cucina e zona pranzo, una camera da letto, un bagno, ingresso, scala, locale tecnico/utility e ripostiglio, garantendo uno spazio abitativo comodo e funzionale.

Primo Piano: Il primo piano dispone di tre camere da letto, ciascuna con bagno privato, corridoio e scala. Una loggia collegata a questo piano offre ulteriore spazio esterno e comfort.

Mansarda: La mansarda ospita un’area spa con bagno e ripostiglio, ideale per il relax, mentre una terrazza scoperta permette di godere dell’aria aperta.

La superficie interna totale è di 149,80 m², mentre gli spazi esterni aggiuntivi (loggia e terrazza) aumentano la funzionalità e l’attrattiva dell’immobile. Il riscaldamento è garantito da pavimento radiante tramite pompa di calore, e tutti gli ambienti sono climatizzati. L’appartamento è progettato secondo standard moderni, con particolare attenzione alla luminosità, al comfort e all’ottimizzazione degli spazi.

Il futuro proprietario ha la possibilità di installare una piscina di 13 m², incrementando ulteriormente l’appeal e il valore della proprietà.

Il completamento dei lavori è previsto entro la fine del 2026.

La vicinanza al centro storico di Parenzo, alle spiagge, ai ristoranti e a tutti i servizi rende questa proprietà particolarmente interessante. Situata in un ambiente tranquillo ma a pochi minuti di auto da tutte le comodità, rappresenta il perfetto equilibrio tra vita urbana e relax.

Parenzo è uno dei principali centri turistici dell’Istria, rinomato per la sua ricca storia, il patrimonio culturale e l’alta qualità della vita. La città offre infrastrutture moderne, spiagge curate, numerose attività sportive e culturali, nonché un’eccellente offerta gastronomica. Nelle vicinanze si trovano bellezze naturali e siti di interesse come la Basilica Eufrasiana, patrimonio UNESCO. Parenzo unisce il fascino mediterraneo ai comfort moderni, risultando attraente sia per vivere sia per investire.

Per ulteriori informazioni e per organizzare una visita, non esitate a contattarci.

Petra Juričić
Agente con licenza
+385 91 185 1211
petra@spatium.hr

Spatium Immobiliare
+385 51 272 903
info@spatium.hr

ID CODE: 6004

Petra Juričić
Agent s licencom
Mob: +385 91 185 1211
Tel: +385 51 272 903
E-mail: petra@spatium.hr
www.spatium.hr
Caratteristiche
Tipologia
Appartamento
Contratto
Vendita
Piani edificio
3
Ascensore
No
Superficie
166 m²
Locali
5
Camere da letto
4
Bagni
3+
Balcone
No
Terrazzo
No
Box, posti auto
2 posto auto
Riscaldamento
Autonomo, ad aria
Climatizzazione
Autonomo, freddo/caldo
Informazioni sul prezzo
Prezzo
€ 550.000
Prezzo al m²
3.313 €/m²
Efficienza energetica
  • Anno di costruzione

    2026
  • Riscaldamento

    Autonomo, ad aria
  • Climatizzatore

    Autonomo, freddo/caldo
  • Certificazione energetica

    Non classificabile
Planimetria
Scopri ogni angolo dell'immobile
+6
Opzioni aggiuntive

Contatta l'inserzionista

Oppure