1/9


Quadrilocale Kostrena, Kostrena
€ 902.000
Annuncio aggiornato il 22/01/2026
Descrizione
riferimento: 1794
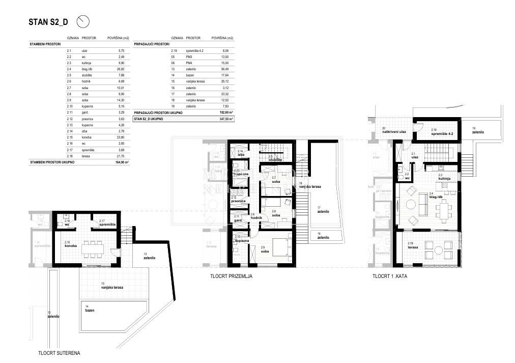
Appartamento Kostrena, 280,80m2
ID CODE: 1794
Frano Barunčić
Direktor
Mob: +385 91 151 0186
Tel: +385 51 582 317
E-mail: frano.baruncic@mediator-nekretnine.hr
www.mediator-nekretnine.hr
Vedran Milković
Direktor
Mob: +385 95 563 9510
Tel: +385 51 582 317
E-mail: vedran.milkovic@mediator-nekretnine.hr
www.mediator-nekretnine.hr
Caratteristiche
- Tipologia
- Appartamento
- Contratto
- Vendita
- Ascensore
- No
- Superficie
- 163 m²
- Locali
- 4
- Camere da letto
- 3
- Bagni
- 2
- Balcone
- No
- Terrazzo
- Sì
- Box, posti auto
- 2 posto auto
- Riscaldamento
- Autonomo, ad aria
- Climatizzazione
- Autonomo, freddo/caldo
Informazioni sul prezzo
- Prezzo
- € 902.000
- Prezzo al m²
- 5.534 €/m²
Scopri ogni angolo dell'immobile
Opzioni aggiuntive