Terreno edificabile in Vendita

€ 79.000
472 m²

Nota

Annuncio aggiornato il 08/04/2026
Descrizione

riferimento: 26

U Bibićima, mirnom naselju u Istri okruženom luksuznim vilama i zelenilom, prodaje se građevinsko zemljište površine 472 m² s važećom građevinskom dozvolom i gotovim projektom moderne prizemnice. Idealno za vlastitu vilu za odmor ili sigurnu investiciju u turistički najam.

Projekt koji nadilazi standard
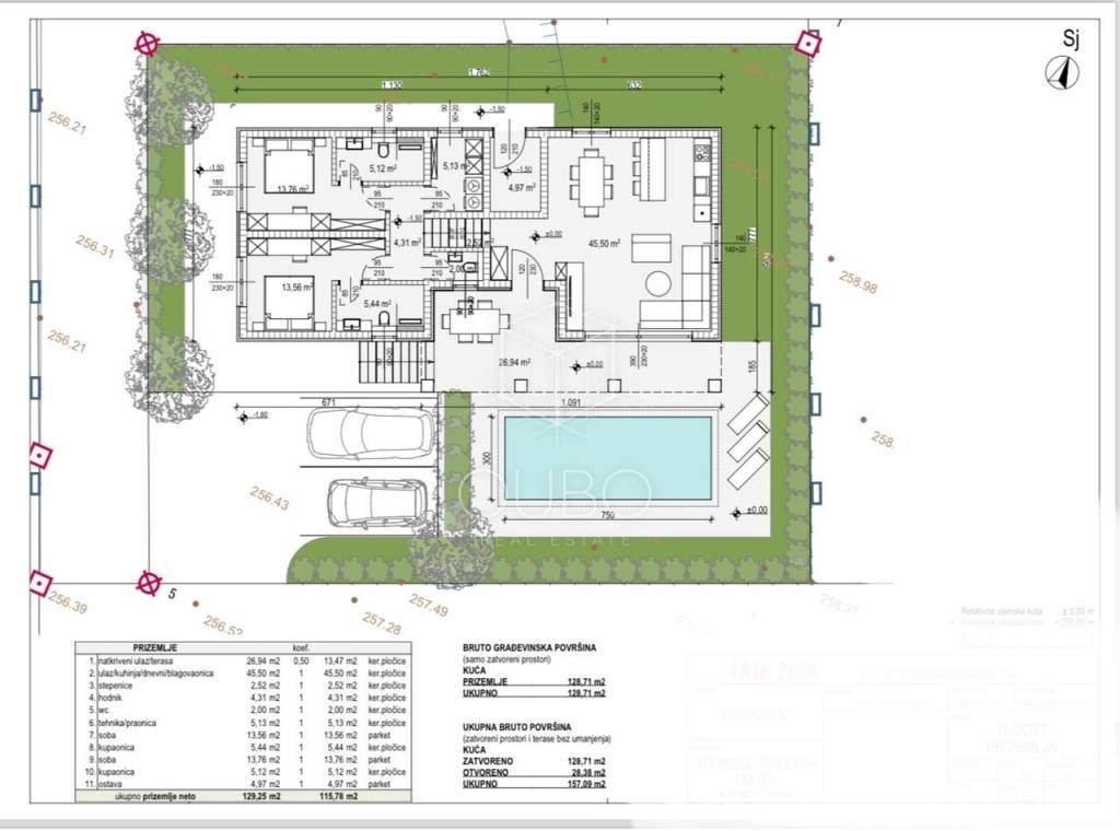
Planirana kuća donosi pažljivo osmišljen tlocrt:
• open space dnevni boravak, kuhinja i blagovaonica u središtu prostora,
• hodnik s nekoliko stepenica vodi u odvojeni spavaći trakt s dvije en-suite spavaće sobe,
• dodatna prostorija predviđena za praonicu ili ostavu,
• tehnička soba s vlastitim ulazom – praktično i diskretno,
• natkrivena terasa od 26 m² s pogledom na okućnicu i bazen,
• bazen površine 22 m², savršeno uklopljen u okoliš za ljetna opuštanja,
• dva parkirna mjesta osiguravaju funkcionalnost za život i goste.

Dokumentacija i infrastruktura – sve spremno
• pravomoćna građevinska dozvola,
• osigurana služnost puta i komunalne infrastrukture,
• projekt uključuje sve priključke (voda, struja, telekom),
• vlasništvo uredno, bez tereta i bez dodatnih ulaganja u papirologiju.

Lokacija s potencijalom
Udaljeno samo 20 minuta od Pule i 30 minuta od mora, zemljište se nalazi u rezidencijalnoj zoni gdje dominiraju novogradnje visoke vrijednosti – mir, sigurnost i diskretan luksuz.

Ključne prednosti:
• Građevinska dozvola – odmah spremno za gradnju
• Dvije en-suite sobe + pomoćne prostorije
• Bazen 22 m² + terasa 26 m² u nastavku dnevnog prostora
• Tehnička soba s vlastitim ulazom
• Vrhunska arhitektura – funkcionalnost i estetika
• Uredno vlasništvo 1/1, bez tereta
• Okruženo luksuznim vilama – stabilna tržišna vrijednost

Zainteresirani ste?
Kontaktirajte nas za više informacija, uvid u projektnu dokumentaciju i dogovor termina na terenu.
Po želji, nudimo Vam preporuke pouzdanih izvođača radova i stručnjaka s kojima surađujemo – kako biste od ideje do realizacije prošli bez stresa.

ID CODE: 26

Silk Road j.d.o.o.
Ovlašteni posrednik
Mob: +385 99 833 0776
Tel: +385 97 750 1918
E-mail: valentina@qubovillas.com
www.qubovillas.com
Caratteristiche
Contratto
Vendita
Tipologia
Terreno edificabile
Superficie
472 m²
Informazioni sul prezzo
Prezzo
€ 79.000
Prezzo al m²
167 €/m²
Planimetria
Scopri ogni angolo dell'immobile
+6
Opzioni aggiuntive

Contatta l'inserzionista

Oppure