Terratetto plurifamiliare Vodnjan, Dignano

€ 519.000
4
215 m²
3
No
Balcone
Terrazzo

Nota

Annuncio aggiornato il 22/01/2026
Descrizione

This description has been translated automatically and may not be accurate

riferimento: 1403

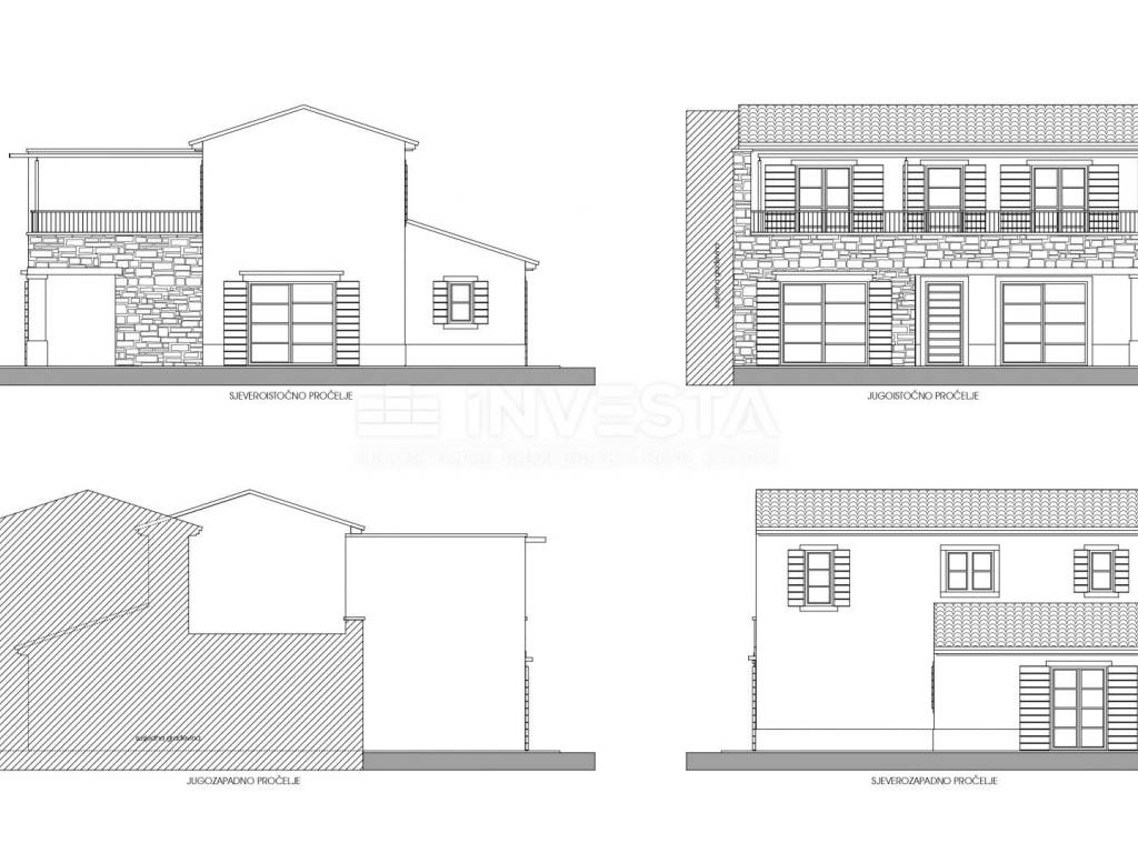
Zona di Vodnjan, villa bifamiliare con piscina

Zona di Vodnjan, villa bifamiliare con piscina

La villa si trova su un terreno di 539 m², che offre ampi spazi esterni e un’area per socializzare con piscina prevista. La categorizzazione prevista è 4*.

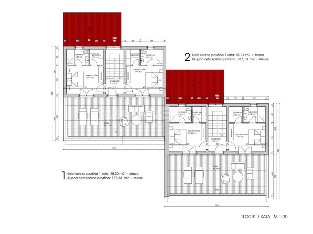
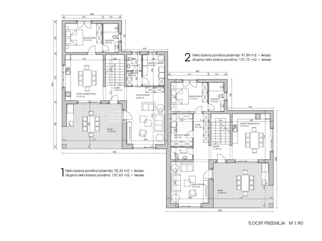
La superficie totale sviluppata della villa è di 215 m², mentre la superficie utile netta è di 165 m², divisa tra piano terra e primo piano.

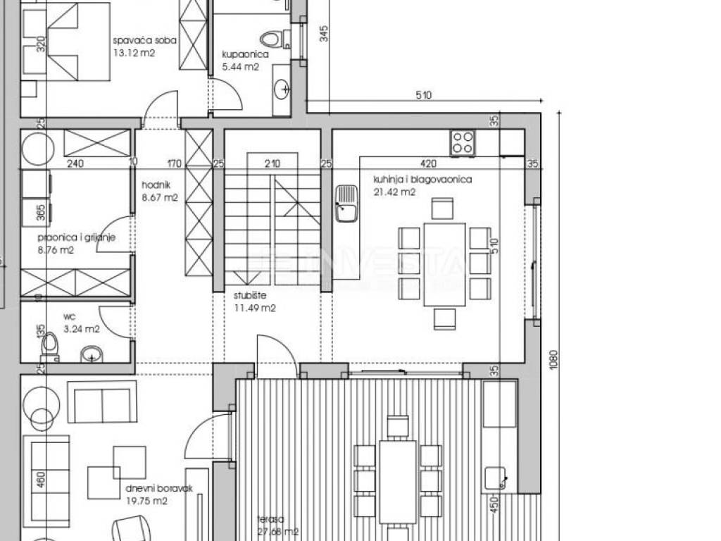
Al piano terra si trova una camera da letto con bagno privato, una zona lavanderia, un WC, una cucina + sala da pranzo che, insieme al soggiorno, accedono a una spaziosa terrazza con zona pranzo e cucina estiva.
Una scala conduce al primo piano, dove si trovano due camere da letto, ognuna con bagno privato e cabina armadio. Ogni camera ha accesso a una grande terrazza da cui si gode una vista panoramica sulla natura circostante.

All’ingresso del giardino ci sono 3 posti auto coperti.
La casa è bifamiliare, ma è completamente protetta dalla vista e garantisce totale privacy. Esiste la possibilità di acquistare anche l'edificio adiacente.

La costruzione è attualmente in fase di realizzazione, con termine dei lavori previsto per la primavera del 2025.

Viene venduta in fase di costruzione grezza, pronta per essere rifinita secondo i propri gusti. È possibile accordarsi per l'acquisto anche prima del completamento dei lavori e per la scelta dei colori e dei materiali per gli infissi, le piastrelle, il parquet, la facciata, l'installazione del riscaldamento a pavimento e tutti i lavori di finitura.

A seconda dei lavori eseguiti, il prezzo potrebbe aumentare o diminuire.

Per ulteriori informazioni o per fissare una visita, non esitate a contattarci!

ID CODE: 1403

Roberta Marie Rendulić
Mob: +385 99 759 7766
Tel: +385 52 33 00 33
E-mail: roberta@investa.hr
www.investa.hr
Caratteristiche
Tipologia
Terratetto plurifamiliare
Contratto
Vendita
Piani edificio
1
Ascensore
No
Superficie
215 m²
Locali
4
Camere da letto
3
Bagni
3
Balcone
Terrazzo
Box, posti auto
3 posto auto
Climatizzazione
Autonomo, freddo/caldo
Informazioni sul prezzo
Prezzo
€ 519.000
Prezzo al m²
2.414 €/m²
Efficienza energetica
  • Anno di costruzione

    2025
  • Climatizzatore

    Autonomo, freddo/caldo
  • Certificazione energetica

    Non classificabile
Scopri ogni angolo dell'immobile
+9
Opzioni aggiuntive

Contatta l'inserzionista

Oppure