Trilocale Povile, Novi Vinodolski, Novi Vinodolski

€ 310.000
3
80 m²
1
2
No
Terrazzo

Nota

Annuncio aggiornato il 22/01/2026
Descrizione

This description has been translated automatically and may not be accurate

riferimento: 449

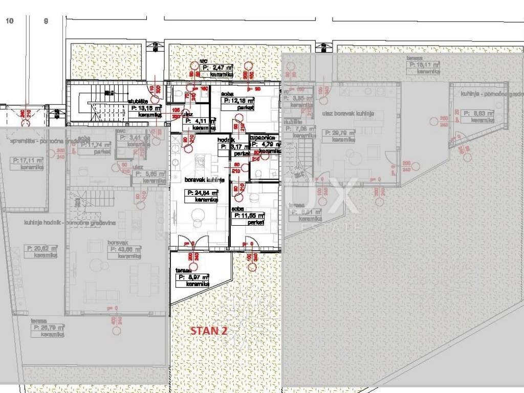
POVILE - appartamento 79m2, 2° piano, nuova costruzione

Stiamo vendendo un appartamento al secondo piano di un nuovo edificio, a soli 250 metri dal mare e dalla spiaggia di Povile, vicino a Novi Vinodolski.

Rialzato rispetto alla strada principale, l'edificio offre una vista sul mare dal piano terra. Tutti gli appartamenti dispongono di un posto auto ed è possibile acquistare anche un garage aggiuntivo di 17 m².
Gli appartamenti al piano terra hanno una parte di giardino antistante l'appartamento, mentre tutti gli appartamenti ai piani superiori dispongono di balconi e terrazze.

La struttura verrà completata con la formula chiavi in ​​mano e durante la fase di costruzione sarà possibile scegliere i rivestimenti dei pavimenti e apportare alcune correzioni agli interni.
Si prevede il completamento dei lavori e l'ingresso nell'immobile per la fine del 2025.

Per ulteriori informazioni non esitate a contattarci.

ID CODE: 449

Leon Horvatić
Agent
Mob: 095 5356 655
Tel: +38595 5356 655
E-mail: leon@lux-realestate.net
www.lux-realestate.net

Kelly Horvatić
Agent
Mob: 099 3519 532
Tel: +385 99 3519 532
E-mail: kelly@lux-realestate.net
www.lux-realestate.net
Caratteristiche
Tipologia
Appartamento
Contratto
Vendita
Piano
2 piano
Piani edificio
2
Ascensore
No
Superficie
80 m²
Locali
3
Camere da letto
2
Bagni
1
Balcone
No
Terrazzo
Box, posti auto
1 posto auto
Riscaldamento
Autonomo, ad aria
Climatizzazione
Autonomo, freddo/caldo
Informazioni sul prezzo
Prezzo
€ 310.000
Prezzo al m²
3.875 €/m²
Efficienza energetica

Consumo di energia

A+

Scopri ogni angolo dell'immobile
+18
Opzioni aggiuntive

Contatta l'inserzionista

Oppure