Trilocale Njivice, Omišalj, Njivice, Castelmuschio

€ 625.000
3
91 m²
1
T
No
Terrazzo

Nota

Annuncio aggiornato il 22/01/2026
Descrizione

This description has been translated automatically and may not be accurate

riferimento: 2689

ISOLA DI KRK, NJIVICE, APPARTAMENTO DI NUOVA COSTRUZIONE, ESCLUSIVAMENTE PRESSO L'AGENZIA SPATIUM

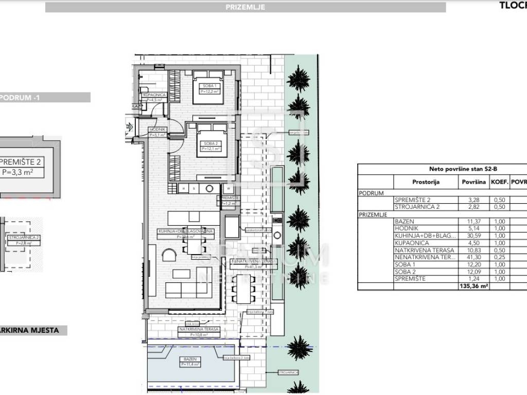
NJIVICE, ISOLA DI KRK, in un'offerta esclusiva si trova un appartamento a due piani con piscina in un piccolo edificio nuovo. La superficie è di 104,45 mq ed è così distribuita: cucina con sala da pranzo e soggiorno 38,55 mq, due camere da letto di 11,34 e 11,52 mq, due bagni di 5,48 e 4,78 mq, disimpegno di 2,8 mq, ripostiglio 0,84 mq, terrazzo di 66,10 m2, balcone 5,25 m2 e piscina di 11,30 m2. L'appartamento sarà dotato di carpenteria in alluminio, rivestimenti per pavimenti di prima classe e servizi igienici di prima classe. Il riscaldamento è a pavimento tramite pompa di calore, mentre per il raffrescamento viene utilizzato un sistema fan-coil. Tutto sarà combinato in un sistema intelligente, con il quale questo concetto innovativo migliorerà la gestione di tutti i dispositivi e fornirà una migliore sicurezza del sistema ed efficienza energetica. In una strada tranquilla, circondata da case unifamiliari e nuovi edifici di lusso, vicino alla cintura verde, questa posizione offre tutto ciò che si può desiderare in vacanza, così come durante un soggiorno tutto l'anno. Il completamento previsto dei lavori è agosto 2025. Vivi una vera vacanza estiva nell'incantevole atmosfera di una località turistica direttamente sul mare! Belle spiagge, mare eccezionalmente azzurro, molta ombra e un clima mite attirano ogni anno sempre più ospiti a Njivice, che oggi sono sinonimo di turismo familiare. Un tempo piccolo villaggio di pescatori, Njivice è oggi una nota destinazione turistica, una località balneare con un'anima, che gli ospiti provenienti dall'Europa e da altri paesi amano visitare. Per altre informazioni contattateci con fiducia. Azalea Kegalj Agente autorizzato +385 95 905 5464 azalea@spatium.hr Jana Hodak Agente autorizzato 098/1671-888 jana@spatium.hr Spatium nekretnine +385 51 272 903 info@spatium.hr

ID CODE: 2689

Azalea Kegalj
Agent s licencom
Mob: +385 95 905 5464
Tel: +385 51 272 903
E-mail: azalea@spatium.hr
www.spatium.hr

Jana Hodak
Agent s licencom
Mob: +385 98 167 1888
Tel: +385 51 272 903
E-mail: jana@spatium.hr
www.spatium.hr
Caratteristiche
Tipologia
Appartamento
Contratto
Vendita
Piano
Piano terra
Piani edificio
2
Ascensore
No
Superficie
91 m²
Locali
3
Camere da letto
2
Bagni
1
Balcone
No
Terrazzo
Box, posti auto
1 in box privato/box in garage, 2 posto auto
Riscaldamento
Autonomo, ad aria
Informazioni sul prezzo
Prezzo
€ 625.000
Prezzo al m²
6.868 €/m²
Efficienza energetica
  • Anno di costruzione

    2024
  • Riscaldamento

    Autonomo, ad aria
  • Certificazione energetica

    Non classificabile
Scopri ogni angolo dell'immobile
+5
Opzioni aggiuntive

Contatta l'inserzionista

Oppure