Terreno edificabile in Vendita

€ 215.000
603 m²

Nota

Annuncio aggiornato il 04/04/2026
Descrizione

riferimento: 1223

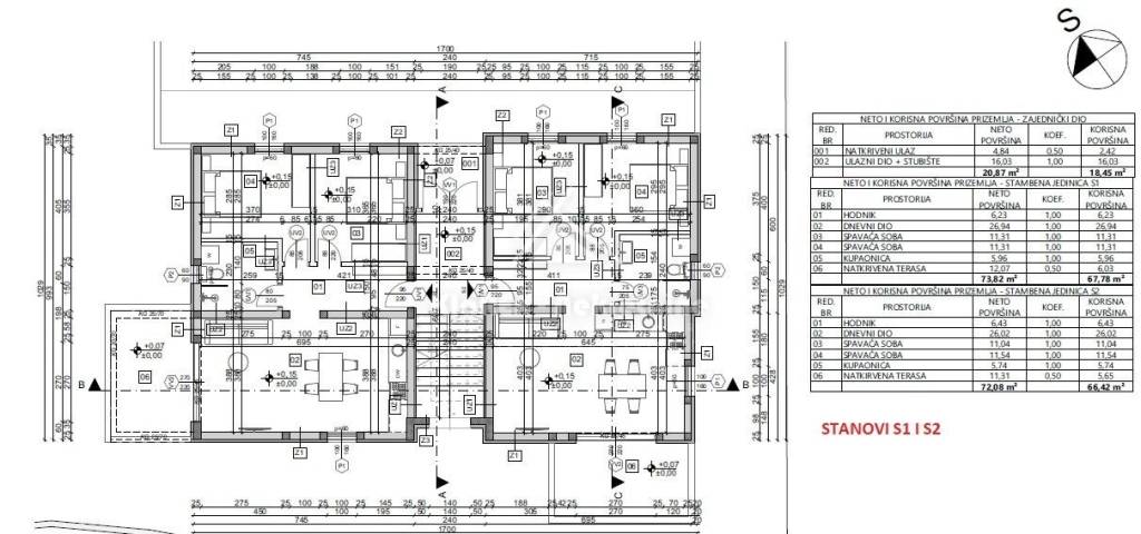
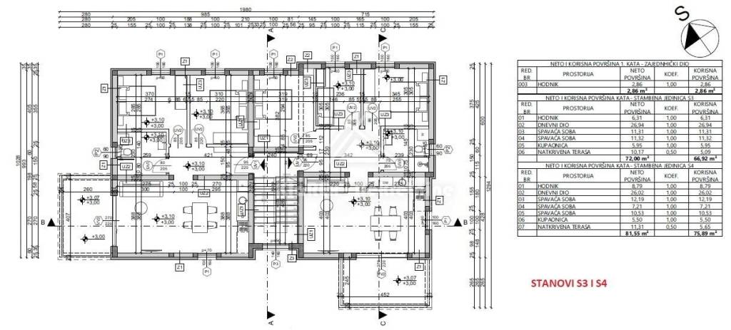
U Vodicama, na udaljenosti od 550 metara od mora, odnosno uređene plaže se stavlja u prodaju građevinsko zemljište površine 603 m/2. Za zemljište je izrađena projektna dokumentacija i uskoro se očekuje ishođenje građevinske dozvole. Projekt uključuje manju stambenu zgradu s ukupno četiri stambene jedinice površine od 67 m/2 do 75.89 m/2. Stanovima u prizemlju pripadaju i okućnice, a zgrada će posjedovati ukupno 6 parkirnih mjesta. Ova nekretnina predstavlja izvrsnu priliku za potencijalne investitore koji planiraju gradnju na dobroj poziciji u blizini mora i svih relevantnih sadržaja. Vlasništvo čisto, dodatne informacije na upit.

ID CODE: 1223

Julijo Klarin
Mob: +385 91 621 7217
Tel: +385 91 621 7217
E-mail: direktor@klarex-nekretnine.hr
www.klarex-nekretnine.hr
Caratteristiche
Contratto
Vendita
Tipologia
Terreno edificabile
Superficie
603 m²
Informazioni sul prezzo
Prezzo
€ 215.000
Prezzo al m²
357 €/m²
Planimetria
Opzioni aggiuntive

Contatta l'inserzionista

Oppure