Trilocale Vodice, Vodizze

€ 295.000
3
112 m²
2
No

Nota

Annuncio aggiornato il 17/04/2026
Descrizione

This description has been translated automatically and may not be accurate

riferimento: 1206

In Vodice, in an extremely quiet location about 1200 meters from the sea, or the city center, new apartments are being offered for sale. This is a residential building with a total of eight residential units, four of which are duplex apartments with mostly two bedrooms, while the other four apartments are mostly one-bedroom, classic one-story apartments. The smallest apartment is a one-bedroom apartment with a net area of ​​48.66 m/2, while the largest apartment is a duplex, three-bedroom apartment with a net area of ​​172.73 m/2. The building is being built according to modern construction standards, which include PVC and ALU joinery, flooring in a combination of high-class ceramics and laminate, air conditioning, heating/cooling in all rooms, underfloor heating in all rooms except the bedrooms, etc. All duplex apartments have their own courtyards with gardens and two parking spaces, while the one-story apartments on the second floor of the building have one parking space. The building is currently in the final phase of construction, while the project is expected to be completed and move in by mid-July 2026. Payment dynamics in agreement with the investor. We offer:

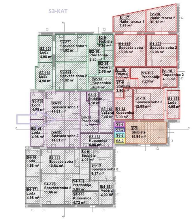
S3-bedroom, two-storey apartment on the ground floor and first floor of a residential building with a net area of ​​112.61 m/2. The apartment consists of a ground floor with an entrance hall, a living room with an adjoining kitchen and dining room, a bathroom and a small storage room. The living room opens onto a loggia with an area of ​​7.16 m/2. Internal stairs lead to the first floor where there are two bedrooms, a bathroom and a laundry room. Each room also has its own loggia. The apartment also has a garden on the ground floor with an area of ​​60.48 m/2 and two parking spaces.

ID CODE: 1206

Julijo Klarin
Mob: +385 91 621 7217
Tel: +385 91 621 7217
E-mail: direktor@klarex-nekretnine.hr
www.klarex-nekretnine.hr
Caratteristiche
Tipologia
Appartamento
Contratto
Vendita
Ascensore
No
Superficie
112 m²
Locali
3
Camere da letto
2
Bagni
2
Balcone
No
Terrazzo
No
Box, posti auto
2 posto auto
Riscaldamento
Autonomo, ad aria
Climatizzazione
Autonomo, freddo/caldo
Informazioni sul prezzo
Prezzo
€ 295.000
Prezzo al m²
2.634 €/m²
Efficienza energetica

Consumo di energia

A+

Planimetria
Scopri ogni angolo dell'immobile
+15
Opzioni aggiuntive

Contatta l'inserzionista

Oppure