Quadrilocale Omišalj, Centar, Castelmuschio

€ 343.000
4
94 m²
1
T
No
Balcone
Terrazzo

Nota

Annuncio aggiornato il 22/01/2026
Descrizione

This description has been translated automatically and may not be accurate

riferimento: 2666

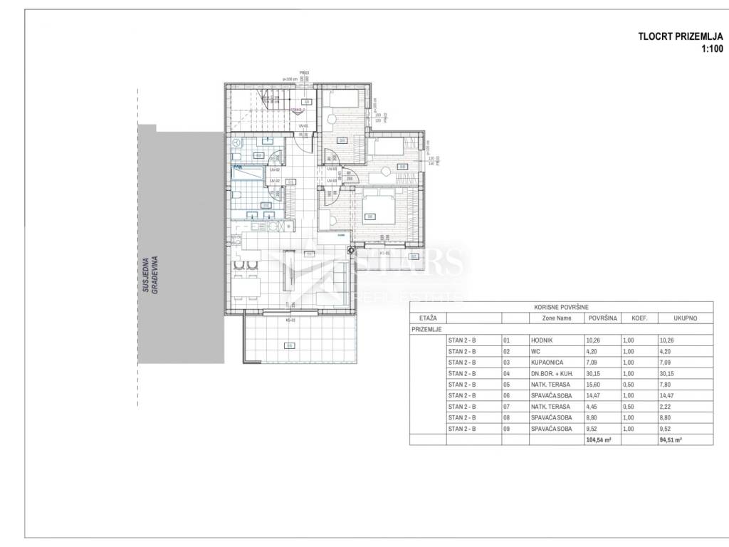
In Omišalj, on the island of Krk, a modern 3-bedroom apartment with living room is for sale, with a total calculated area of 94.51 m². It is located on the ground floor of a smaller residential building with a total of three apartments, in a quiet and attractive street.

The apartment consists of:

Living room with kitchen and dining area (30.15 m²)
Three bedrooms (14.47 m², 9.52 m² and 8.80 m²)
Bathroom (7.09 m²)
Separate toilet (4.20 m²)
Hallway (10.26 m²)
Two covered terraces (15.60 m² and 4.45 m²)

The apartment comes with two parking spaces included in the price.

The total floor area including annexes is 104.54 m², and the calculated usable area (with coefficients) is 94.51 m².

Planned completion of construction: mid-2027.

The apartment will feature PVC joinery, electric underfloor heating in the bathroom, heating and cooling via air conditioning units (indoor units in the living room and all bedrooms, outdoor units on the roof), and heat pumps. A chimney opening is also planned, allowing for the installation of a fireplace. The building is constructed with 25 cm thick brick walls and 10 cm thermal insulation, ensuring good energy efficiency and comfort.

Ideal for family living, as a holiday home, or as an investment for tourist rental. The location offers peace, privacy, and proximity to all amenities.

For more information or to arrange a viewing, contact us directly.

Apartment 2-B

ID CODE: 2666

Mirjana Vadlja
Prodajni predstavnik
Mob: + 385 99 302 5010
Tel: +385 51 302 501
E-mail: mirjana.vadlja@starsrealestate.hr
https://starsrealestate.hr
Caratteristiche
Tipologia
Appartamento
Contratto
Vendita
Piano
Piano terra
Piani edificio
1
Ascensore
No
Superficie
94 m²
Locali
4
Camere da letto
3
Bagni
1
Balcone
Terrazzo
Box, posti auto
2 posto auto
Informazioni sul prezzo
Prezzo
€ 343.000
Prezzo al m²
3.649 €/m²
Efficienza energetica
  • Certificazione energetica

    Non classificabile
Scopri ogni angolo dell'immobile
+9
Opzioni aggiuntive

Contatta l'inserzionista

Oppure