Bilocale Funtana, Fontane

€ 185.000
2
41 m²
1
3
No
Balcone

Nota

Annuncio aggiornato il 12/03/2026
Descrizione

This description has been translated automatically and may not be accurate

riferimento: 87331

Funtana - appartamento con vista mare aperta

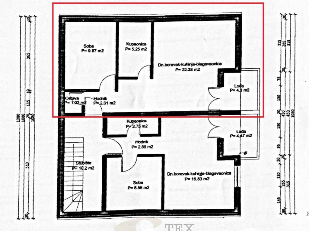
In vendita appartamento situato a soli 200 metri dal mare. Si trova al terzo piano di un edificio residenziale e ha una superficie di 41,29 m².

L’appartamento è composto da ingresso, ripostiglio, camera da letto, bagno e soggiorno collegato con cucina e zona pranzo.

Dal soggiorno si accede al balcone che offre una splendida vista aperta sul mare e sul tramonto.

L’appartamento è completamente arredato e attrezzato, climatizzato e subito abitabile.

L’ultima ristrutturazione è stata effettuata nel 2015 e, grazie agli infissi in PVC e al riscaldamento elettrico, è garantito un piacevole clima interno durante tutto l’anno.

Nel prezzo è incluso anche un ripostiglio.

ID CODE: 87331

Tex Immobilie
Agent s licencom
Mob: 0989826003
Tel: 0994705455
E-mail: info@tex-immobilie.com
www.tex-immobilie.com
Caratteristiche
Tipologia
Appartamento
Contratto
Vendita
Piano
3 piano
Piani edificio
3
Ascensore
No
Superficie
41 m²
Locali
2
Camere da letto
1
Bagni
1
Balcone
Terrazzo
No
Riscaldamento
Autonomo, ad aria
Climatizzazione
Autonomo, freddo/caldo
Informazioni sul prezzo
Prezzo
€ 185.000
Prezzo al m²
4.512 €/m²
Efficienza energetica
  • Riscaldamento

    Autonomo, ad aria
  • Climatizzatore

    Autonomo, freddo/caldo
  • Certificazione energetica

    Non classificabile
Scopri ogni angolo dell'immobile
+13
Opzioni aggiuntive

Contatta l'inserzionista

Oppure