Trilocale Primošten, Capocesto

€ 331.000
3
73 m²
1
1
No
Terrazzo

Nota

Annuncio aggiornato il 24/04/2026
Descrizione

This description has been translated automatically and may not be accurate

riferimento: 4058-S3

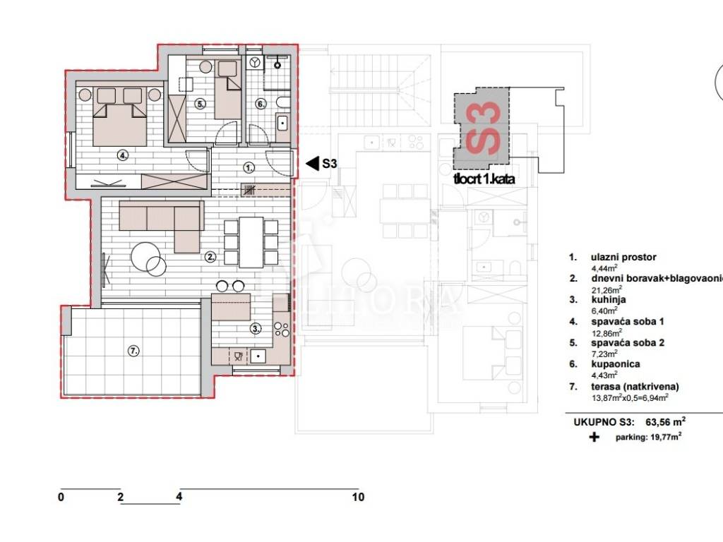
Primošten – Top-quality apartment with spacious terrace, and panoramic view. Situated in a peaceful, elevated location above Primošten, this modern apartment in the 1st floor of a new residential building offers a breathtaking panoramic view of the sea and the picturesque town. The building is designed to the highest contemporary living standards and positioned ideally – easily accessible by car, close to all public amenities, yet set back enough to provide privacy and tranquility. The apartment offers a total usable area of 73,45m² and is oriented to the southwest. It consists of an entrance hall, a modern bathroom, two comfortable bedrooms, and a spacious living area with access to a large terrace of 13,87m². Designed with a focus on quality and comfort, the apartment includes: underfloor heating, high-quality aluminum/PVC joinery with insect screens and electric roller shutters, premium ceramic tiles and first-class parquet flooring a garage parking space of 14,36 m² equipped with an electric vehicle charging station (already installed). The building is currently under construction, with completion and move-in expected by summer 2026. The distance to the nearest beach is approximately 1,250 m, and about 1,800 m to the center of Primošten.

ID CODE: 4058-S3

Dijana Banović
Agent s licencom
Mob: +385 98 192 6220
E-mail: dijana@litora-nekretnine.hr
www.litora-nekretnine.hr

Divna Bulat
Agent s licencom
Mob: +385 91 6367 574
E-mail: divna@litora-nekretnine.hr
www.litora-nekretnine.hr

Milica Štrkalj
Agent s licencom
Mob: +385 95 342 5722
E-mail: milica@litora-nekretnine.hr
www.litora-nekretnine.hr
Caratteristiche
Tipologia
Appartamento
Contratto
Vendita
Piano
1 piano
Piani edificio
3
Ascensore
No
Superficie
73 m²
Locali
3
Camere da letto
2
Bagni
1
Balcone
No
Terrazzo
Box, posti auto
1 in box privato/box in garage, 1 posto auto
Riscaldamento
Autonomo, ad aria
Climatizzazione
Autonomo, freddo/caldo
Informazioni sul prezzo
Prezzo
€ 331.000
Prezzo al m²
4.534 €/m²
Efficienza energetica

Consumo di energia

A

Scopri ogni angolo dell'immobile
+14
Opzioni aggiuntive

Contatta l'inserzionista

Oppure