Trilocale Primošten, Capocesto

€ 268.000
3
66 m²
1
R
No
Terrazzo

Nota

Annuncio aggiornato il 24/04/2026
Descrizione

This description has been translated automatically and may not be accurate

riferimento: 4058-S2

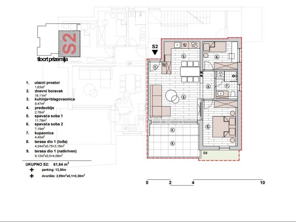
Primošten – Top-quality apartment with spacious terrace, and panoramic view. Situated in a peaceful, elevated location above Primošten, this modern apartment in the high ground floor of a new residential building offers a breathtaking panoramic view of the sea and the picturesque town. The building is designed to the highest contemporary living standards and positioned ideally – easily accessible by car, close to all public amenities, yet set back enough to provide privacy and tranquillity. The apartment offers a total usable area of 66,94m² and is oriented to the southeast. It consists of modern bathroom, two comfortable bedrooms, and a spacious living area with access to a large terrace of 12,34m² featuring and a private garden area of 2,99 m². Designed with a focus on quality and comfort, the apartment includes underfloor heating, high-quality aluminium/PVC joinery with insect screens and electric roller shutters, premium ceramic tiles and first-class parquet flooring a parking space of 12,50 m² equipped with an electric vehicle charging station (already installed). The building is currently under construction, with completion and move-in expected by summer 2026. The distance to the nearest beach is approximately 1,250 m, and about 1,800 m to the centre of Primošten.

ID CODE: 4058-S2

Dijana Banović
Agent s licencom
Mob: +385 98 192 6220
E-mail: dijana@litora-nekretnine.hr
www.litora-nekretnine.hr
Caratteristiche
Tipologia
Appartamento
Contratto
Vendita
Piano
Piano rialzato
Piani edificio
2
Ascensore
No
Superficie
66 m²
Locali
3
Camere da letto
2
Bagni
1
Balcone
No
Terrazzo
Box, posti auto
1 posto auto
Riscaldamento
Autonomo, ad aria
Climatizzazione
Autonomo, freddo/caldo
Informazioni sul prezzo
Prezzo
€ 268.000
Prezzo al m²
4.061 €/m²
Efficienza energetica

Consumo di energia

A

Scopri ogni angolo dell'immobile
+13
Opzioni aggiuntive

Contatta l'inserzionista

Oppure