Ufficio - Studio in Vendita

€ 868.068
1.473 m²

Nota

Annuncio aggiornato il 22/01/2026
Descrizione

This description has been translated automatically and may not be accurate

riferimento: p011

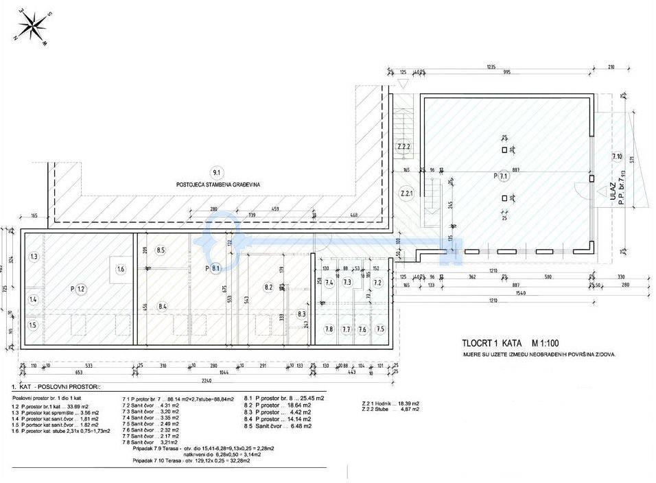
FUŽINE – STRUTTURA INDIPENDENTE CON LOCALI

Vendesi struttura indipendente composta dall’edificio ad uso residenziale e commerciale della superficie di 1000 m2 che può essere ostello, casa di riposo o ristorante con camere da letto. Subito attaccato si trova l’edificio della superficie di 473.39 m2 con otto locali a diverso uso caffè bar, negozio, farmacia, drogheria, panificio, macellaio, parrucchiere o salone di bellezza, pizzeria, ristorante o appartamento. Si trova nel pieno centro e dista soli 70 metri dal lago.

ID CODE: p011

Dragan Nešić
Ovlašteni posrednik
Mob: 098 216 225
Tel: 051 855 422
E-mail: info@krkrealestate.hr
www.krkrealestate.hr
Caratteristiche
Contratto
Vendita
Tipologia
Ufficio - Studio
Superficie
1.473 m²
Informazioni sul prezzo
Prezzo
€ 868.068
Prezzo al m²
589 €/m²
Efficienza energetica
  • Certificazione energetica

    Non classificabile
Scopri ogni angolo dell'immobile
+19
Opzioni aggiuntive

Contatta l'inserzionista

Oppure