Quadrilocale Njivice, Njivice, Castelmuschio

€ 480.000
4
110 m²
2
No

Nota

Annuncio aggiornato il 22/01/2026
Descrizione

This description has been translated automatically and may not be accurate

riferimento: 1555

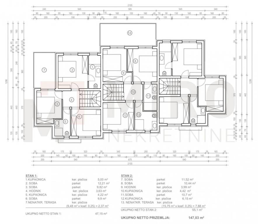
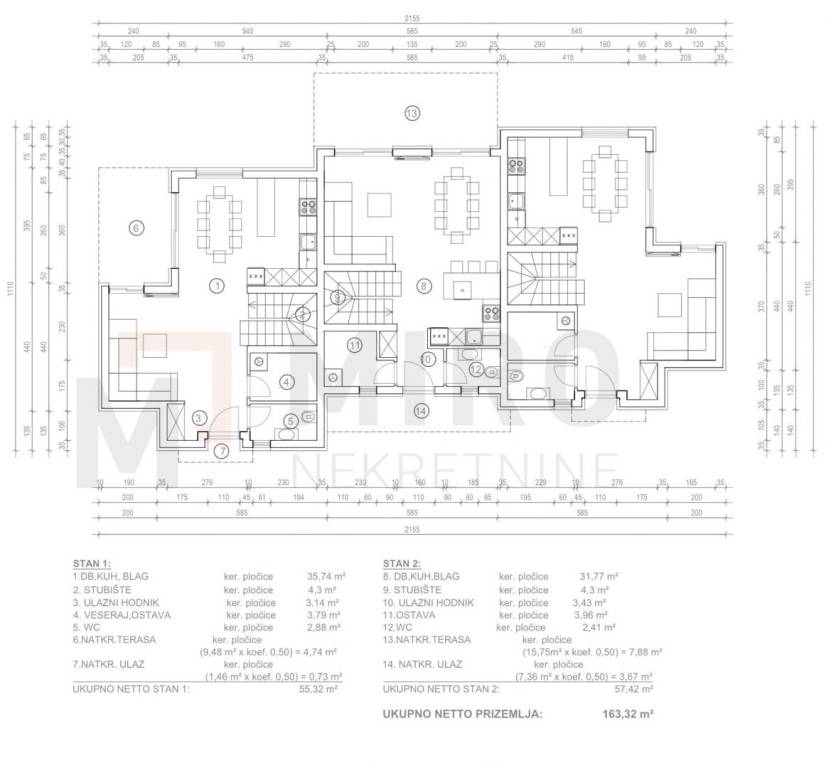
Island of Krk, Njivice, for sale is a new building, a terraced house with its own swimming pool and garden. The total area of ​​the property is approx. 110 m2, and consists of a living room and kitchen with dining room, utility room, toilet and covered terrace on the ground floor, while on the first floor there are 3 bedrooms, 2 bathrooms and a terrace. Parking for 2 cars is provided on the garden plot. The property is currently in the unfinished phase, and the planned completion of the works is at the end of 2025. The property is owned by a natural person, and the buyer pays a 3% real estate transfer tax upon purchase. The seller of the property guarantees proper ownership documentation. Visit us and find the square footage of your home!

ID CODE: 1555

Miroslav Grđan
Agent s licencom
Mob: +385 98 924 9293
Tel: +385 (0) 51 570 101
E-mail: miro@mironekretnine.hr
www.mironekretnine.hr
Caratteristiche
Tipologia
Duplex
Contratto
Vendita
Ascensore
No
Superficie
110 m²
Locali
4
Camere da letto
3
Bagni
2
Balcone
No
Terrazzo
No
Box, posti auto
2 posto auto
Climatizzazione
Autonomo, freddo/caldo
Informazioni sul prezzo
Prezzo
€ 480.000
Prezzo al m²
4.364 €/m²
Efficienza energetica
  • Anno di costruzione

    2025
  • Climatizzatore

    Autonomo, freddo/caldo
  • Certificazione energetica

    Non classificabile
Planimetria
Opzioni aggiuntive

Contatta l'inserzionista

Oppure