Trilocale Novi Vinodolski, Novi Vinodolski

€ 219.516
3
61 m²
1
T
No
Terrazzo

Nota

Annuncio aggiornato il 22/01/2026
Descrizione

This description has been translated automatically and may not be accurate

riferimento: 4624

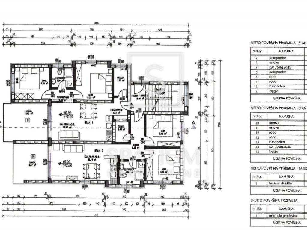
Appartamento Novi Vinodolski, 61,57m2

NOVI VINODOLSKI, proponiamo appartamento posto al piano terra di una nuova palazzina. Con una superficie netta di 61,57 mq, l'appartamento è composto da un disimpegno, una cucina con sala da pranzo e soggiorno, due camere da letto, un bagno, un ripostiglio e una loggia. Si trova in un edificio residenziale più piccolo e dispone di un posto auto. È possibile visionare e prenotare l'immobile fino al completamento dei lavori, previsto per l'estate 2025. Costruzione di alta qualità da parte di un investitore comprovato con esperienza. Posizione tranquilla e urbana, non lontano dal centro e dal mare. Adatto per soggiorno, vacanza o turismo tutto l'anno. Novi Vinodolski è un'antica cittadina balneare con un ricco passato e una tradizione turistica secolare. Oggi la città rocciosa sul mare è anche il centro del turismo nautico con due porti turistici nautici. Il mare cristallino, le spiagge, la città e i dintorni senza inquinanti industriali, i numerosi vigneti, le zone di caccia, l'aria di montagna che scorre dai boschi d'alto fusto dell'immediato entroterra, i sentieri ciclabili ed escursionistici, i punti panoramici e le passeggiate forniscono alla Riviera di Novi Vinodolski vantaggi ecologici inestimabili. La posizione geografica di Novi Vinodolski, così come la sua accessibilità via mare, terra e aria, cioè la sua vicinanza ai paesi dell'Europa centrale, la rendono una destinazione attraente per le vacanze estive o per le vacanze brevi. L'aeroporto internazionale di Rijeka si trova a 25 km di distanza ed è operativo tutto l'anno. Per altre informazioni contattateci con fiducia. Mislav Smolčić assistente alla mediazione +385 91 500 6757 mislav@spatium.hr Vesna Smolčić agente autorizzato +385 91 571 7682 vesna@spatium.hr Spatium nekretnine +385 51 272 903 info@spatium.hr

ID CODE: 4624

Vesna Smolčić
Agent s licencom
Mob: +385 91 571 7682
Tel: +385 51 452 479
E-mail: vesna@spatium.hr
www.spatium.hr

Mislav Smolčić
Asistent u posredovanju
Mob: +385 91 500 6757
Tel: +385 51 452 479
E-mail: mislav@spatium.hr
www.spatium.hr
Caratteristiche
Tipologia
Appartamento
Contratto
Vendita
Piano
Piano terra
Piani edificio
2
Ascensore
No
Superficie
61 m²
Locali
3
Camere da letto
2
Bagni
1
Balcone
No
Terrazzo
Box, posti auto
1 posto auto
Riscaldamento
Autonomo, ad aria
Climatizzazione
Autonomo, freddo/caldo
Informazioni sul prezzo
Prezzo
€ 219.516
Prezzo al m²
3.599 €/m²
Efficienza energetica
  • Anno di costruzione

    2025
  • Riscaldamento

    Autonomo, ad aria
  • Climatizzatore

    Autonomo, freddo/caldo
  • Certificazione energetica

    Non classificabile
Scopri ogni angolo dell'immobile
+7
Opzioni aggiuntive

Contatta l'inserzionista

Oppure