Terreno edificabile in Vendita

€ 420.000
965 m²

Nota

Annuncio aggiornato il 06/02/2026
Descrizione

This description has been translated automatically and may not be accurate

riferimento: 4468

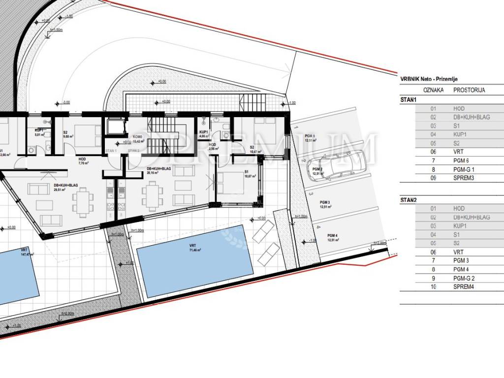
Vrbnik, terreno con permesso di costruzione valido!

Vrbnik, vendita, terreno edificabile con permesso di costruzione valido per la costruzione di 4 unità residenziali.

Il progetto include la costruzione di un edificio con seminterrato, piano terra, primo piano e secondo piano.

Nel seminterrato si trova un garage dove ogni appartamento ha il proprio posto auto e il proprio ripostiglio.
Al piano terra si trovano due appartamenti, ciascuno con due camere da letto e due bagni, con giardini privati con piscina e zona solarium.

Al primo piano c'è un appartamento composto da due camere da letto, ciascuna con il proprio bagno. Anche il giardino dispone di una piscina privata con zona solarium.

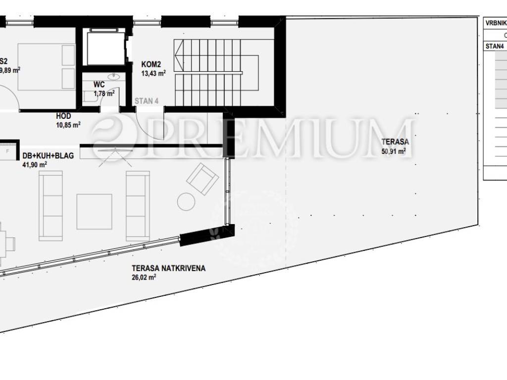
Al secondo piano c'è il quarto appartamento con una terrazza di 77m2, anch'esso con due camere da letto, bagno e un WC per gli ospiti.

La proprietà vanta un bellissimo, moderno progetto. Tutti i piani sono collegati da un ascensore. La posizione privilegiata offre una vista sul mare da tutti i piani della proprietà.

ID CODE: 4468

Premium nekretnine Malinska
Mob: +385915474709
Tel: +38551858364
E-mail: info@premium-nekretnine.com
Caratteristiche
Contratto
Vendita
Tipologia
Terreno edificabile
Superficie
965 m²
Informazioni sul prezzo
Prezzo
€ 420.000
Prezzo al m²
435 €/m²
Scopri ogni angolo dell'immobile
+7
Opzioni aggiuntive

Contatta l'inserzionista

Oppure