Terreno edificabile in Vendita

€ 169.900
438 m²

Nota

Annuncio aggiornato il 22/01/2026
Descrizione

riferimento: 793

JEDINSTVENA PRILIKA! Posredujemo u prodaji građevinskog zemljišta sa ishođenom pravomoćnom građevinskom dozvolom za koji je izrađen glavni projekt. Ovo građevinsko zemljište se nalazi u Vodicama u blizini svih turističkih sadržaja, a udaljeno cca 1000 metara od mora. Parcela je pravilnog oblika, konfiguracija terena je blagi nagib. Sva potrebna infrastruktura nalazi se u neposrednoj blizini, a pristupni putevi su asfaltirani. Prema projektu i pravomoćno ishođenoj građevinskoj dozvoli na parceli se može izgraditi manja stambena zgrada sa tri stambene jedinice na tri etaže sa ravnim krovom.
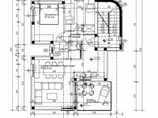
Na svakoj od etaža se nalazi po jedan stan, svi stanovi su jednake površine i jednakog tlocrta.
BPR pojedine etaže 87,6‬ m2. Nakon izgradnje, svaki od tih stanova se može etažirati i vlasnik se može uknjižiti. Po pravilima GUP-a, to je ujedno i maksimalan broj stambenih jedinica koje se mogu etažirati na tom području. Svi stanovi se sastoje od dnevnog boravka, kuhinje i blagovaonice, dvije spavaće sobe, kupaonice, hodnika i terase.
Svakom stanu pripadaju dva parkirna mjesta, te vrt.
Ovo građevinsko zemljište nalazi se na iznimno dobroj lokaciji. Udaljenost od grada Šibenika je 15 km, nacionalnog parka Krka 24 km, a udaljenost od zračne luke Split je 70 km.
Ne propustite ovu jedinstvenu priliku i kontaktirajte nas za više informacija.

CIJENA: 169.900,00 €

ID CODE: 793

Zoran Matković
Direktor
Mob: +385 95 383 6721
Tel: +385(0)22 571 863
E-mail: zoran@primosten-immobilien.com
www.primosten-immobilien.com
Caratteristiche
Contratto
Vendita
Tipologia
Terreno edificabile
Superficie
438 m²
Informazioni sul prezzo
Prezzo
€ 169.900
Prezzo al m²
388 €/m²
Scopri ogni angolo dell'immobile
+8
Opzioni aggiuntive

Contatta l'inserzionista

Oppure