Quadrilocale Pirovac, Pirovazzo

€ 320.000
4
100 m²
2
T
No
Terrazzo

Nota

Annuncio aggiornato il 22/01/2026
Descrizione

This description has been translated automatically and may not be accurate

riferimento: AP-1012

A two-story apartment with a pool in a semi-detached house in a quiet location is for sale in Pirovac.

FLAT S2 consists of a ground floor, a first floor, a terrace and a garden with a swimming pool.

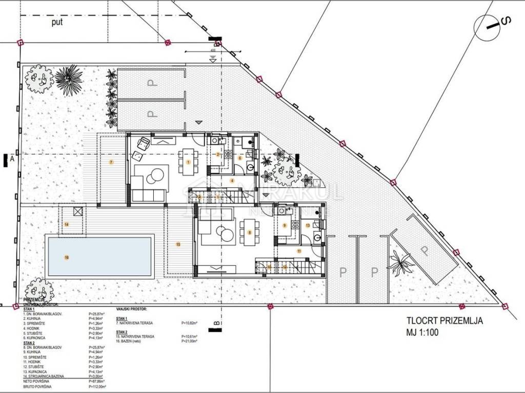
GROUND FLOOR
On the ground floor there is a living room/dining room (25.87 m2), a kitchen (4.94 m2), a storage room (1.26 m2), a corridor (3.33 m2), a staircase (2.90 m2), a bathroom (4, 13 m2), a covered terrace (10.61 m2) and a swimming pool (7x3m) with a garden.

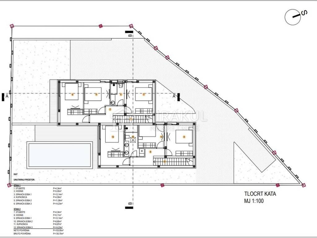
FIRST FLOOR
There are three bedrooms and a bathroom on the first floor.
Room 1 (12.14 m2), Room 2 (8.80 m2) and Room 3 (14.23 m2), bathroom (6.87 m2), corridor (5.11 m2) and staircase (4.34 m2).

Very high-quality and modern construction, thermal insulation (10 cm), PVC windows and glass walls (3.30 m wide), electric blinds, air conditioning in the rooms and dining room/living room, underfloor heating in the bathrooms, high-quality ceramics and sanitary ware in the bathrooms.

Parking: 3 parking spaces
The distance from the Lolić beach is 700 m, and from the town center 800 m.

The advertisement uses renderings and the actual condition may not match as shown in the 3D photo.

ID CODE: AP-1012

Mirakul Adria
Mob: +385 91 150 5210 Philipp Drescher (DE, EN, HR)
Tel: +385 22 438 023 (DE, EN, HU, HR)
E-mail: mirakul@mirakul-adria.hr
http://mirakul-adria.hr
Caratteristiche
Tipologia
Appartamento
Contratto
Vendita
Piano
Piano terra
Piani edificio
1
Ascensore
No
Superficie
100 m²
Locali
4
Camere da letto
3
Bagni
2
Balcone
No
Terrazzo
Box, posti auto
3 posto auto
Riscaldamento
Autonomo, ad aria
Climatizzazione
Autonomo, freddo/caldo
Informazioni sul prezzo
Prezzo
€ 320.000
Prezzo al m²
3.200 €/m²
Efficienza energetica
  • Anno di costruzione

    2024
  • Riscaldamento

    Autonomo, ad aria
  • Climatizzatore

    Autonomo, freddo/caldo
  • Certificazione energetica

    Non classificabile
Scopri ogni angolo dell'immobile
+8
Opzioni aggiuntive

Contatta l'inserzionista

Oppure