Trilocale Monvidal, Pula, Monvidal - Monte Ghiro, Pola

€ 270.000
3
140 m²
2
1
No
Balcone
Terrazzo

Nota

Annuncio aggiornato il 22/01/2026
Descrizione

This description has been translated automatically and may not be accurate

riferimento: 3338

Appartamento Šijana, Pula, 90m2

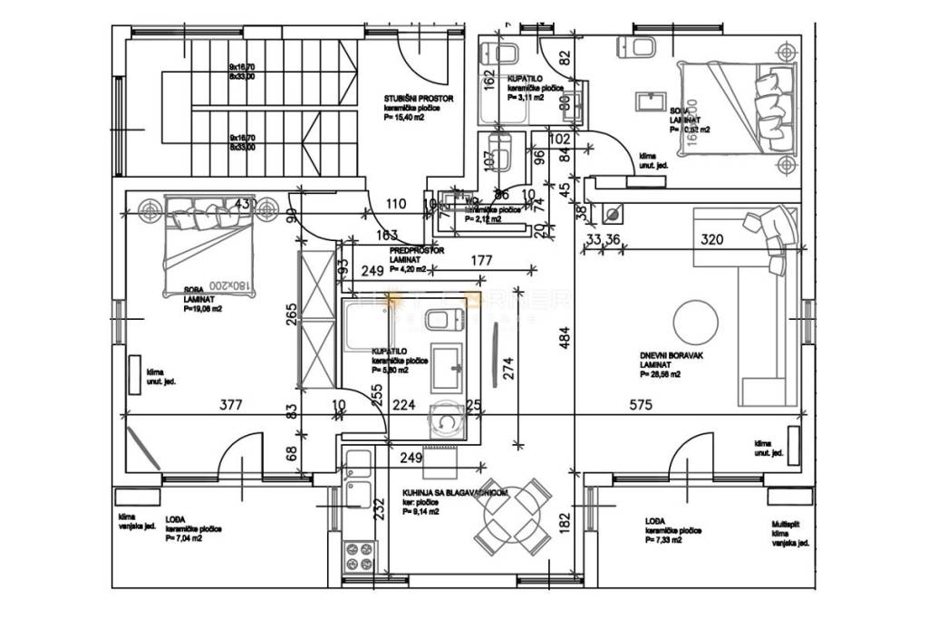
Offerta di un comodo appartamento al 1° piano di un piccolo edificio residenziale a Pola, in una zona più tranquilla, nella zona di Monvidal-Šijana. Questa nuova costruzione è composta dal piano terra, primo e secondo piano, con ogni appartamento che si estende su un piano. L' appartamento in offerta si trova al 1° piano ed ha una superficie totale di circa 105m2, composto da un ingresso (4,2m2), soggiorno (28,56m2), cucina con sala da pranzo (9,14m2), camera da letto (10,52m2) con bagno privato (3,11m2), camera da letto (19,08m2) con bagno privato (5,8m2), wc (2,12m2) e 2 balconi (7,33m2 e 7,04m2).

L'appartamento dispone anche di un posto auto di fronte all'edificio, dotato di caricatore per veicoli elettrici e di un allaccio dell'acqua per lavare l'auto. L'appartamento include anche un giardino (parte del cortile) con una superficie di circa 30m2, dotato di allacciamenti per acqua, elettricità e fognatura per l'installazione di una cucina estiva e di un barbecue. L'appartamento dispone anche di uno spazio di archiviazione sotto le scale dell'edificio, con una superficie di circa 4m2.

L'edificio è completamente costruito e coperto con una facciata, con finestre in PVC dotate di tapparelle elettriche e pareti interne. Il completamento e il trasferimento sono previsti per la primavera del 2024. Gli appartamenti saranno dotati di porte d'ingresso antieffrazione, unità di aria condizionata a inverter (1 unità in ogni camera da letto e nel soggiorno; un totale di 3 unità), riscaldamento elettrico a pavimento in tutto l'appartamento, citofono, prese e interruttori, antenna TV e ringhiere in acciaio inossidabile sui terrazzi. I bagni saranno dotati di una cabina doccia con canale, apparecchi igienici sospesi. L'acquirente ha la possibilità di scegliere laminato e piastrelle in ceramica.

Un eccellente appartamento per una vita familiare di lusso, in quanto dispone di tutte le caratteristiche necessarie, e sicuramente adatto per l'affitto turistico.

Il prezzo di acquisto concordato include la provvigione dell'agenzia secondo le condizioni di business e le spese aziendali.

La documentazione è in ordine, senza gravami.

Per ulteriori informazioni, visione e dettagli del progetto, contattare:
Dean
+385 99 369 9053

ID CODE: 3338

Dean Ostović
Ovlašteni agent
Mob: +385 99 369 9053
Tel: +385 52 212 841
Fax: +385 52 212 841
E-mail: dean@hotcorner.hr
www.hotcorner.hr
Caratteristiche
Tipologia
Appartamento
Contratto
Vendita
Piano
1 piano
Piani edificio
2
Ascensore
No
Superficie
140 m²
Locali
3
Camere da letto
2
Bagni
2
Balcone
Terrazzo
Box, posti auto
1 posto auto
Climatizzazione
Autonomo, freddo/caldo
Informazioni sul prezzo
Prezzo
€ 270.000
Prezzo al m²
1.929 €/m²
Efficienza energetica
  • Anno di costruzione

    2023
  • Climatizzatore

    Autonomo, freddo/caldo
  • Certificazione energetica

    Non classificabile
Planimetria
Scopri ogni angolo dell'immobile
+9
Opzioni aggiuntive

Contatta l'inserzionista

Oppure