Terratetto unifamiliare Medulin, Stari Medulin, Medolino

€ 586.000
4
190 m²
2
No
Terrazzo

Nota

Annuncio aggiornato il 14/04/2026
Descrizione

This description has been translated automatically and may not be accurate

riferimento: ID02034

Medulin area - Modern villa with pool only 100 meters from the sea!

In a quiet settlement not far from Medulin, just 100 meters from the sea, this modern house is for sale in the Roh-bau phase of construction. The stated price includes everything up to the roh-bau stage of construction, but the investor offers the possibility of completing the house on a "turnkey" basis, for a price to be negotiated.

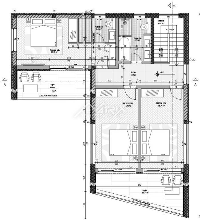
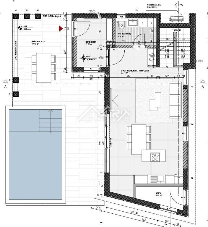
The villa extends over the ground floor and first floor, with a total living area of ​​190 m2. The ground floor of the house is designed as an open space that unites the living room with the dining room and kitchen, and the ground floor is complete with a guest toilet, laundry room and technical room. The living room leads to the pool terrace through large glass walls that provide plenty of light throughout the day, as well as a beautiful view of the sea. The internal stairs lead to the first floor where there are three bedrooms, of which the master bedroom has its own bathroom and its own loggia, while the remaining two bedrooms have a shared bathroom and a shared loggia.

The central part of the fenced yard is a large swimming pool with a sun deck, next to which an outdoor covered dining room is planned, and within the yard a paved area is also planned, which is intended as a covered parking lot for at least two vehicles.

All other details are given to the future owner to choose, and in agreement with the investor, the house can be arranged up to the 'turnkey' stage.

An attractive and peaceful location, yet in close proximity to the city and the sea, make this property ideal for rest and enjoyment throughout the year.

ID CODE: ID02034

Daniel Matković
Agent s licencom
Mob: +385 95 506 58 05
Tel: +385 52 417 779
E-mail: daniel@matrixrealestate.hr
https://matrixrealestate.hr/

Matrix Real Estate
Voditelj ureda
Mob: +385 52 417 779
Tel: +385 52 417 779
E-mail: info@matrixrealestate.hr
https://matrixrealestate.hr/
Caratteristiche
Tipologia
Terratetto unifamiliare
Contratto
Vendita
Piani edificio
1
Ascensore
No
Superficie
190 m²
Locali
4
Camere da letto
3
Bagni
2
Balcone
No
Terrazzo
Box, posti auto
2 posto auto
Informazioni sul prezzo
Prezzo
€ 586.000
Prezzo al m²
3.084 €/m²
Efficienza energetica
  • Anno di costruzione

    2025
  • Certificazione energetica

    Non classificabile
Planimetria
Scopri ogni angolo dell'immobile
+9
Opzioni aggiuntive

Contatta l'inserzionista

Oppure