Trilocale Orebić, Sabbioncello

€ 259.999
3
100 m²
1
No
Terrazzo

Nota

Annuncio aggiornato il 22/01/2026
Descrizione

This description has been translated automatically and may not be accurate

riferimento: 737

Apartment with Sea View for Sale – Orebić, Pelješac

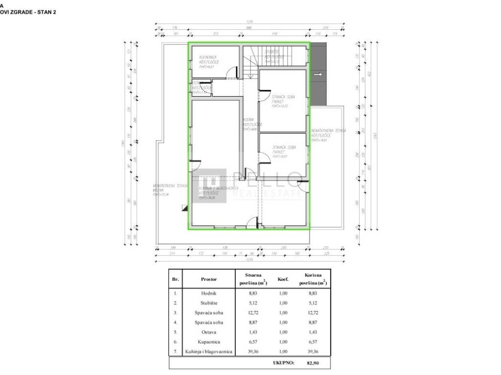
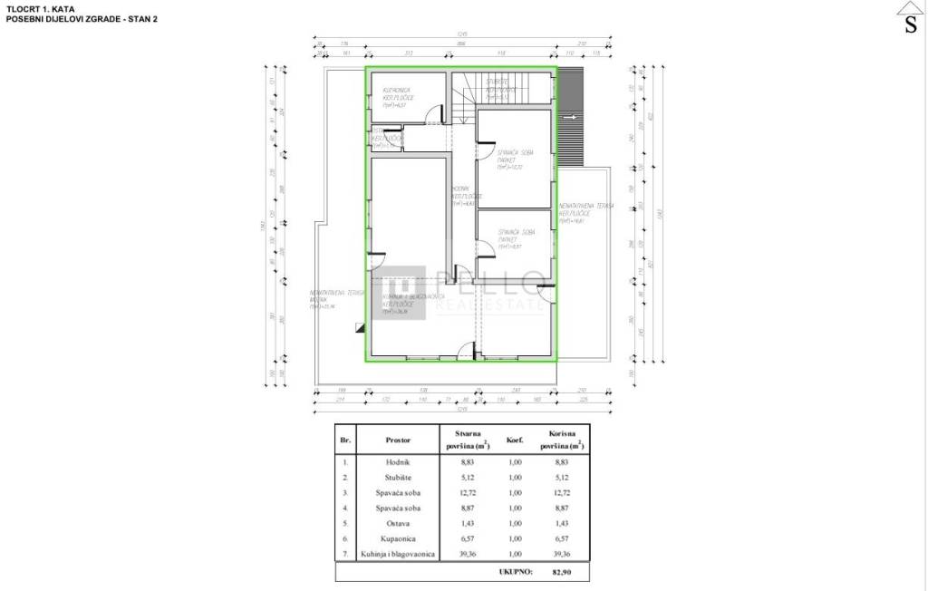
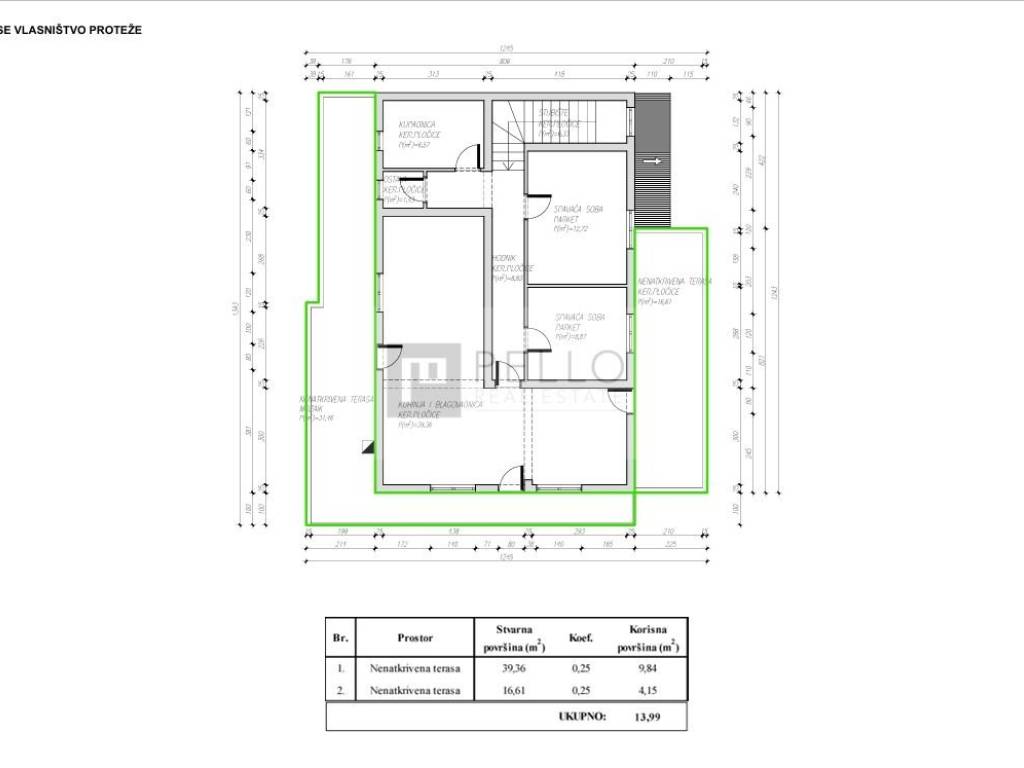
A spacious 100 m² apartment for sale, located on the first floor of a family house in the very center of Orebić, only 450 m from the sea.

The apartment consists of:

two comfortable bedrooms

a bathroom

a spacious living room with plenty of natural light

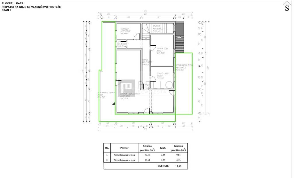
a large balcony with sea view

Key advantages:

stunning sea view

well-maintained house

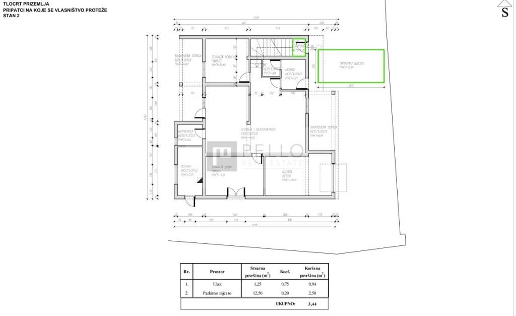
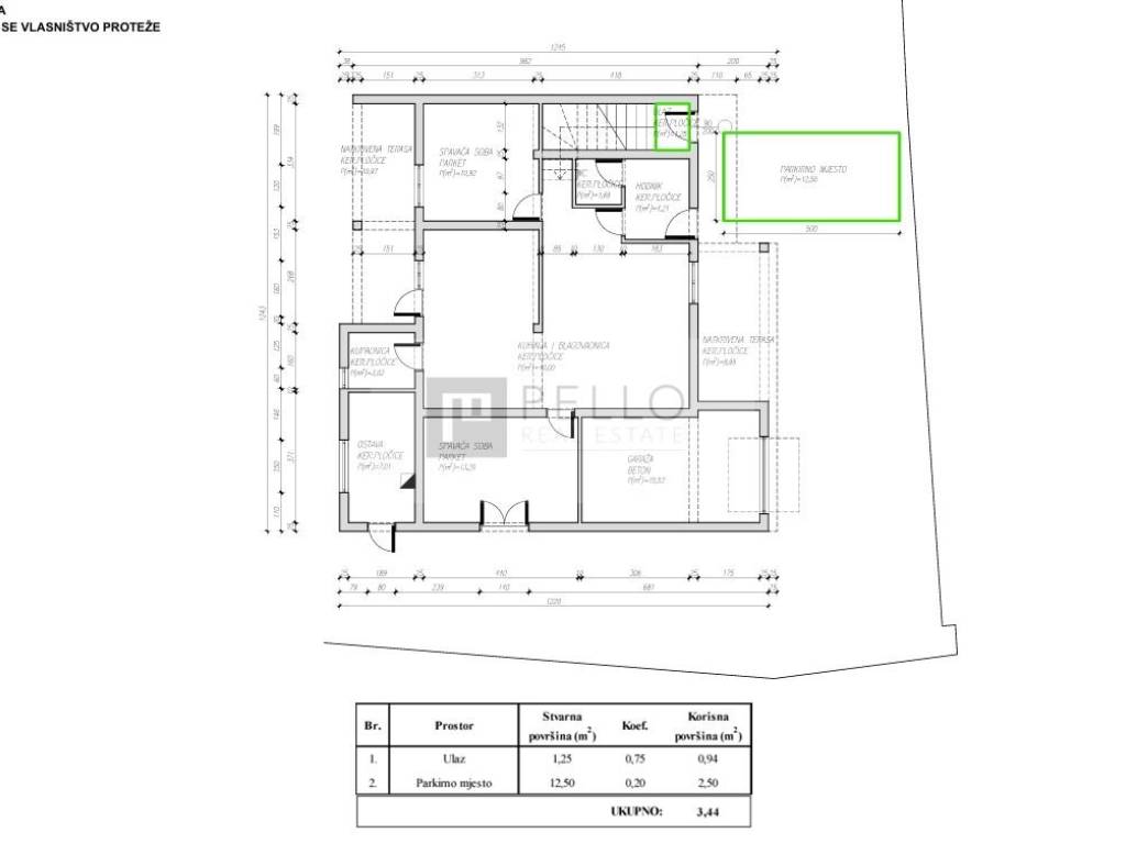
one private parking space included

Excellent location in the center of Orebić, close to the sea and all amenities. The spacious balcony, perfect for enjoying the view, makes this property an ideal choice for family living or as an investment for holidays and tourism.
https://youtu.be/5JoecOhAIpw?si=z91JAfWUo7yqEy9Z

Exclusive sale through Pello Real Estate.

ID CODE: 737

Frano Radić
Voditelj ureda
Mob: +385996896693
Tel: +385 99 6896 693
E-mail: frano.radic@pello-realestate.com
www.pello-realestate.com
Caratteristiche
Tipologia
Appartamento
Contratto
Vendita
Ascensore
No
Superficie
100 m²
Locali
3
Camere da letto
2
Bagni
1
Balcone
No
Terrazzo
Box, posti auto
1 posto auto
Riscaldamento
Autonomo, ad aria
Climatizzazione
Autonomo, freddo/caldo
Informazioni sul prezzo
Prezzo
€ 259.999
Prezzo al m²
2.600 €/m²
Efficienza energetica
  • Anno di costruzione

    1990
  • Riscaldamento

    Autonomo, ad aria
  • Climatizzatore

    Autonomo, freddo/caldo
  • Certificazione energetica

    Non classificabile
Planimetria
Scopri ogni angolo dell'immobile
+20
Opzioni aggiuntive

Contatta l'inserzionista

Oppure