Terratetto plurifamiliare Primošten, Capocesto

€ 769.000
5
153 m²
3
No

Nota

Annuncio aggiornato il 22/01/2026
Descrizione

This description has been translated automatically and may not be accurate

riferimento: 779-K3-S1

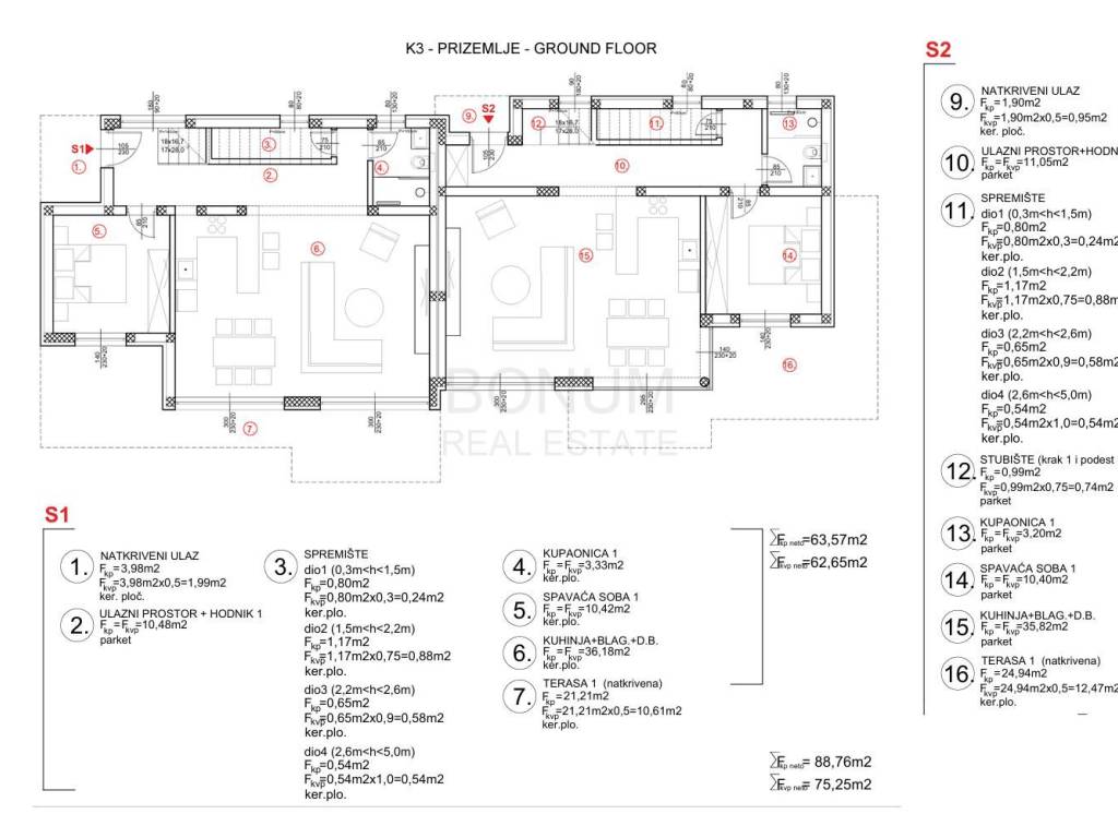
A beautiful luxury semi-detached house with an incredible sea view is for sale, located in Dolac, 2 km from Primošten and only 500 meters from the sea. The house offers a perfect combination of luxury, comfort and an ideal location. It is spread over two floors and has a total of 153.15 m² net area. On the ground floor there is one parking space, an entrance area, a wardrobe, a storage room, a bathroom with a toilet, a bedroom, a dining room and an open-concept living room. The living room and the bedroom open onto a terrace with a beautiful view of the sea and a heated swimming pool, ideal for enjoying warm summer days and all year round. On the first floor there are two bathrooms and three bedrooms with access to the terrace and sea view, providing privacy and maximum comfort for relaxation. The house includes video surveillance and an alarm system for maximum security, solar systems to reduce electricity costs and environmental friendliness, and the most modern materials and equipment for top quality, comfort and energy efficiency. It is characterized by modern exterior and interior lines, creating a perfect ambience for complete relaxation and is ideal for a family vacation. Dolac, a quiet place with crystal clear sea and beautiful beaches, is perfect for those looking for a peaceful holiday near the picturesque Primošten, famous for its narrow stone streets, authentic Dalmatian architecture and rich history. For more information and to arrange a tour, feel free to contact us.

ID CODE: 779-K3-S1

Bonum nekretnine
Mob: 095 750 5763
Tel: 022 644 555
E-mail: info@bonum.com.hr
www.bonum-nekretnine.com
Caratteristiche
Tipologia
Terratetto plurifamiliare
Contratto
Vendita
Ascensore
No
Superficie
153 m²
Locali
5
Camere da letto
4
Bagni
3
Balcone
No
Terrazzo
No
Box, posti auto
1 posto auto
Climatizzazione
Autonomo, freddo/caldo
Informazioni sul prezzo
Prezzo
€ 769.000
Prezzo al m²
5.026 €/m²
Efficienza energetica
  • Anno di costruzione

    2024
  • Climatizzatore

    Autonomo, freddo/caldo
  • Certificazione energetica

    Non classificabile
Scopri ogni angolo dell'immobile
+10
Opzioni aggiuntive

Contatta l'inserzionista

Oppure