Trilocale Popovec, Sesvete, Sesvete sjever, Zagabria

€ 202.593
3
76 m²
1
1
Balcone

Nota

Annuncio aggiornato il 04/02/2026
Descrizione

This description has been translated automatically and may not be accurate

riferimento: 2691

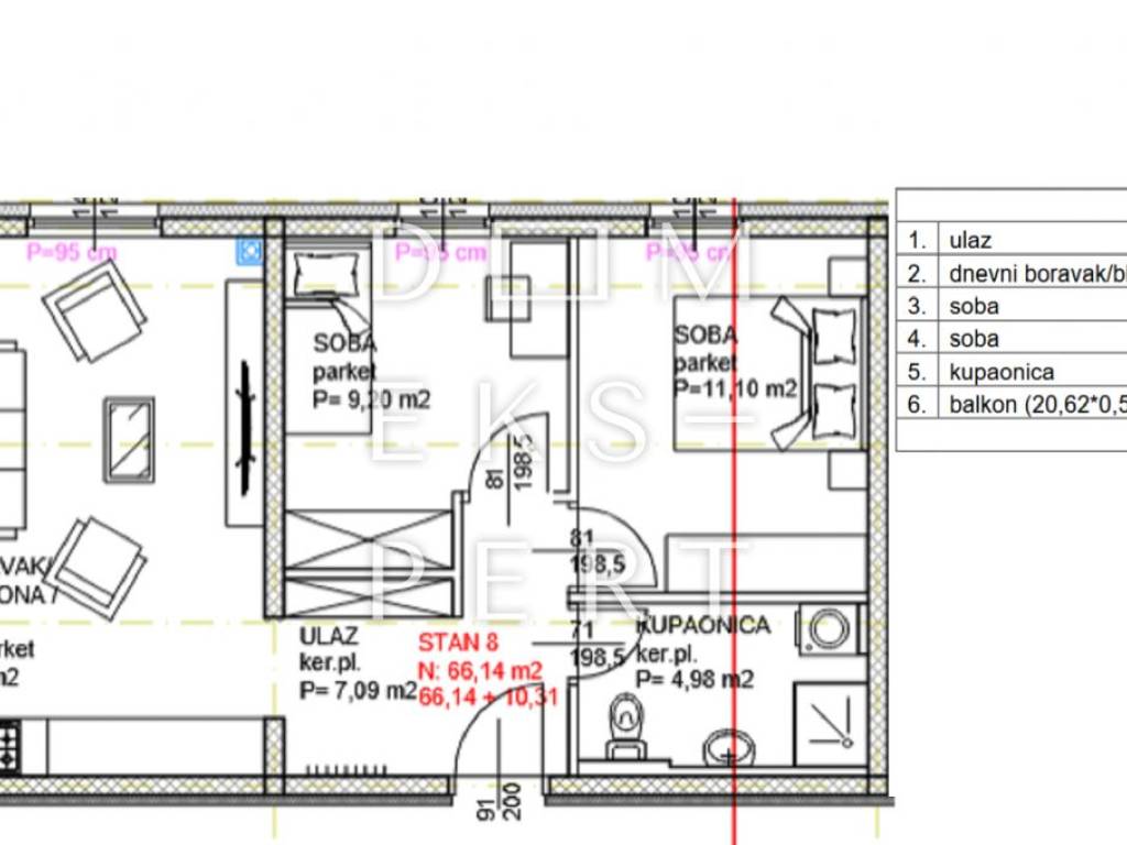
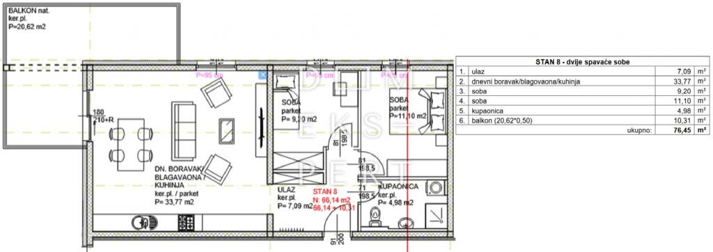
A three-bedroom apartment on the first floor of a building in the Popovec neighborhood, Sesvete, is for sale.

APARTMENT AREA:

66.14 m² (indoor floor area)

the total apartment area is 76.45 m², including a balcony of 20.62 m², calculated according to the corresponding coefficients (10.31 m²).

THE APARTMENT CONSISTS OF:

entrance hallway (7.09 m²)

bathroom (4.98 m²)

living room with dining area and kitchen (33.77 m²)

bedroom (9.2 m²)

bedroom (11.10 m²)

balcony (20.62 m²)

The apartment is oriented to the north and west.

The building consists of a ground floor and three upper floors with a total of 32 apartments. It will be equipped with an elevator. Construction is scheduled to begin in May 2025.

The purchase of one parking space is mandatory. Outdoor uncovered and garage parking spaces are available.

EQUIPMENT:

PVC windows with insulated glass and aluminum shutters (manual operation)

reinforced concrete structure

15 cm thick façade insulation

first-class ceramic tiles

high-quality oak parquet flooring, 12 cm thick

bathroom equipped with sanitary facilities (excluding the washbasin)

central gas heating (radiators)

air conditioning unit in the living room

security entrance door

video intercom system

LOCATION: Popovec is a family-friendly neighborhood located about 4 kilometers from the center of Sesvete. It is served by a ZET bus line connecting to the Sesvete railway station and Dubec. The bus stop is 200 meters from the building. The highway exit is 800 meters away, and the nearest shop is 300 meters away, as is the bus station.

CONTACT: Snježana Čabraja
Phone: +385 1 2013 007
Mobile: +385 99 3601 634
E-mail: snjezana.cabraja@domekspert.hr

ID CODE: 2691
Caratteristiche
Tipologia
Appartamento
Contratto
Vendita
Piano
1 piano
Piani edificio
3
Ascensore
Superficie
76 m²
Locali
3
Camere da letto
2
Bagni
1
Balcone
Terrazzo
No
Riscaldamento
Centralizzato, a pavimento
Climatizzazione
Autonomo, freddo/caldo
Altre caratteristiche
  • Porta blindata
  • VideoCitofono
Informazioni sul prezzo
Prezzo
€ 202.593
Prezzo al m²
2.666 €/m²
Efficienza energetica
  • Riscaldamento

    Centralizzato, a pavimento
  • Climatizzatore

    Autonomo, freddo/caldo
  • Certificazione energetica

    Non classificabile
Planimetria
Scopri ogni angolo dell'immobile
+3
Opzioni aggiuntive

Contatta l'inserzionista

Oppure