Trilocale Popovec, Sesvete, Sesvete sjever, Zagabria

€ 195.438
3
73 m²
1
1
Balcone

Nota

Annuncio aggiornato il 22/01/2026
Descrizione

This description has been translated automatically and may not be accurate

riferimento: 2707

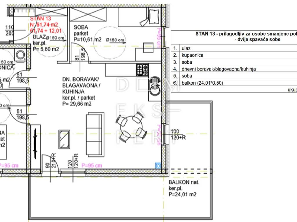
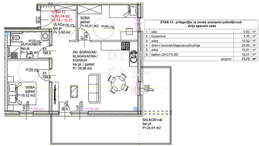
Three-Room Apartment for Sale on the First Floor of a Building in the Popovec Neighborhood, Sesvete

APARTMENT AREA:

61.74 m² (net internal floor area)

Total apartment area is 73.75 m², including a balcony of 24.01 m² calculated using the appropriate coefficient (12.01 m²)

THE APARTMENT CONSISTS OF:

Entrance hallway (5.60 m²)

Bathroom (5.35 m²)

Living room with dining area and kitchen (29.66 m²)

Bedroom (10.52 m²)

Bedroom (10.61 m²)

Balcony (24.01 m²)

The apartment is oriented to the south and east.
The building consists of a ground floor and three upper floors, with a total of 32 apartments. It will be equipped with an elevator. Construction is scheduled to begin in May 2025.

The purchase of one parking space is mandatory with the apartment. Outdoor uncovered and garage parking spaces are available.

EQUIPMENT:

PVC windows with insulated glass and manual aluminum shutters

Reinforced concrete building structure

15 cm thick facade

First-class ceramic tiles

High-quality 12 mm oak parquet

Bathroom equipped with sanitary fittings (excluding the washbasin)

Central gas heating with radiators

Air conditioning unit in the living room

Security entrance door

Video intercom system

LOCATION:
Popovec is a family-oriented neighborhood located 4 kilometers from the center of Sesvete. A ZET bus line serves the area and connects to the Sesvete train station and Dubec. The bus stop is 200 meters from the building. The highway entrance is 800 meters away, and the nearest store is 300 meters away, as is the bus stop.

CONTACT:
Snježana Čabraja
Phone: +385 1 2013 007
Mobile: +385 99 3601 634
Email: snjezana.cabraja@domekspert.hr

ID CODE: 2707
Caratteristiche
Tipologia
Appartamento
Contratto
Vendita
Piano
1 piano
Piani edificio
3
Ascensore
Superficie
73 m²
Locali
3
Camere da letto
2
Bagni
1
Balcone
Terrazzo
No
Box, posti auto
1 posto auto
Riscaldamento
Centralizzato, a pavimento
Climatizzazione
Autonomo, freddo/caldo
Altre caratteristiche
  • Porta blindata
  • VideoCitofono
Informazioni sul prezzo
Prezzo
€ 195.438
Prezzo al m²
2.677 €/m²
Efficienza energetica
  • Riscaldamento

    Centralizzato, a pavimento
  • Climatizzatore

    Autonomo, freddo/caldo
  • Certificazione energetica

    Non classificabile
Planimetria
Scopri ogni angolo dell'immobile
+3
Opzioni aggiuntive

Contatta l'inserzionista

Oppure