1/17


Quadrilocale Vabriga, Tar-Vabriga, Torre-Abrega
€ 665.500
4
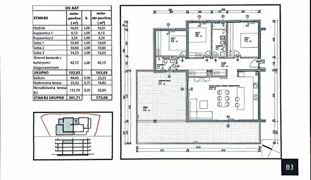
301 m²
2
3
Sì
Balcone
Terrazzo
Annuncio aggiornato il 22/01/2026
Descrizione
riferimento: 231
Appartamento Vabriga, Tar-Vabriga, 301,71m2
ID CODE: 231
Suzana Baričević
Agent s licencom
Mob: 097 7368 366
Tel: 097 736 8366
E-mail: suzana@smartkey.hr
www.smartkey.hr
Caratteristiche
- Tipologia
- Appartamento
- Contratto
- Vendita
- Piano
- 3 piano
- Piani edificio
- 3
- Ascensore
- Sì
- Superficie
- 301 m²
- Locali
- 4
- Camere da letto
- 4
- Bagni
- 2
- Balcone
- Sì
- Terrazzo
- Sì
- Box, posti auto
- 1 posto auto
- Riscaldamento
- Autonomo, ad aria
- Climatizzazione
- Autonomo, freddo/caldo
Informazioni sul prezzo
- Prezzo
- € 665.500
- Prezzo al m²
- 2.211 €/m²
Scopri ogni angolo dell'immobile
Opzioni aggiuntive