Terratetto plurifamiliare Malinska, Malinska-Dubašnica, Malinska

€ 750.000
4
117 m²
3
No
Balcone
Terrazzo

Nota

Annuncio aggiornato il 22/01/2026
Descrizione

This description has been translated automatically and may not be accurate

riferimento: 103377

Malinska, nuova casa bifamiliare con piscina e giardino, a 150 m dal mare!

In vendita tramite la nostra agenzia nel Quarnero è disponibile una casa vacanze di grande valore e costruita con materiali di alta qualità, situata in una delle zone turistiche più rinomate e attraenti della costa adriatica – l'isola di Veglia (Krk). L'immobile si trova a Malinska, una tranquilla e affascinante località marittima, in una posizione eccellente vicino al mare. Si tratta di una casa bifamiliare a due piani, progettata in stile moderno.

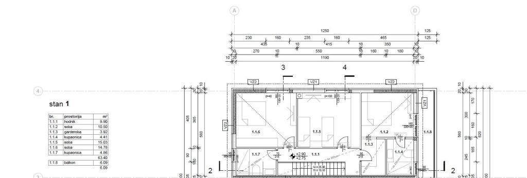
La casa, realizzata con un design contemporaneo, si sviluppa su due livelli per una superficie totale di 117 metri quadrati. Al piano terra si trovano un ampio soggiorno open space con cucina e zona pranzo, un bagno, un ripostiglio e una terrazza. Al piano superiore ci sono tre camere da letto, un corridoio, una cabina armadio, due bagni e un balcone.

Un’atmosfera speciale è garantita dal giardino curato nei minimi dettagli, che comprende una piscina e una zona prendisole. Il cortile offre inoltre un comodo spazio per il parcheggio di due auto. La casa gode di una bellissima vista aperta sul mare, che ne aumenta ulteriormente il valore e l’attrattiva.

L'immobile è soggetto al regime IVA, e il venditore garantisce documentazione regolare e un processo di trasferimento di proprietà semplice e trasparente. Il nostro ufficio sull'isola di Veglia è a vostra completa disposizione per qualsiasi ulteriore informazione. Oltre alla visita e presentazione dell'immobile, il nostro team professionale sarà lieto di assistere l'acquirente nella registrazione della proprietà presso il catasto e nel passaggio delle utenze a proprio nome.

ID CODE: 103377

Ivan Radman
Direktor, agent
Mob: +385 91 605 1497
Tel: +385 51 677 809
Fax: +385 51 677 809
E-mail: ivan.radman@stangrad.hr
www.stangrad.hr
Caratteristiche
Tipologia
Terratetto plurifamiliare
Contratto
Vendita
Ascensore
No
Superficie
117 m²
Locali
4
Camere da letto
3
Bagni
3
Balcone
Terrazzo
Box, posti auto
2 posto auto
Informazioni sul prezzo
Prezzo
€ 750.000
Prezzo al m²
6.410 €/m²
Efficienza energetica

Consumo di energia

A+

Planimetria
Opzioni aggiuntive

Contatta l'inserzionista

Oppure