1/5


Trilocale Maksimir, Dotrščina, Zagabria
€ 348.500
Annuncio aggiornato il 22/01/2026
Descrizione
riferimento: 4486
ID CODE: 4486
Petar Nosić
Viši savjetnik
Mob: 091 7845 106
Tel: 01 6231 365
E-mail: petar@eurohome-nekretnine.hr
www.eurohome-nekretnine.hr
Caratteristiche
- Tipologia
- Appartamento
- Contratto
- Vendita
- Ascensore
- No
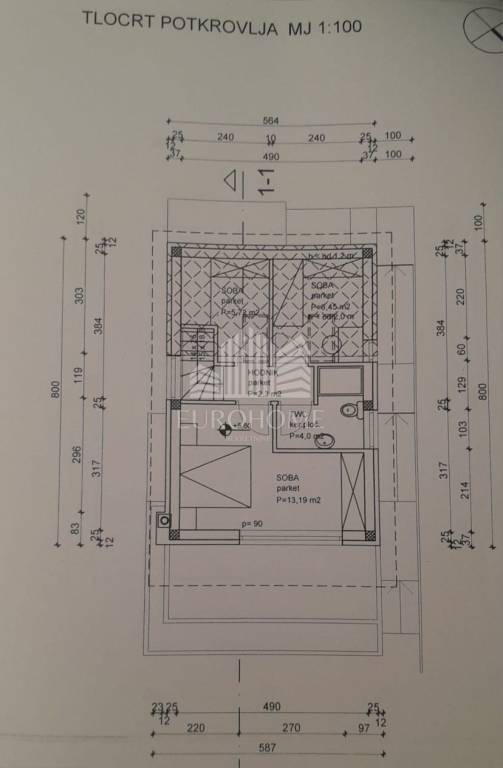
- Superficie
- 82 m²
- Locali
- 3
- Camere da letto
- 3
- Bagni
- 2
- Balcone
- Sì
- Terrazzo
- No
- Box, posti auto
- 1 in box privato/box in garage, 1 posto auto
- Riscaldamento
- Centralizzato, a pavimento
Informazioni sul prezzo
- Prezzo
- € 348.500
- Prezzo al m²
- 4.250 €/m²
Scopri ogni angolo dell'immobile
Opzioni aggiuntive