Trilocale Barbariga, Vodnjan, Dignano

€ 284.800
3
74 m²
1
T
No
Balcone
Terrazzo

Nota

Annuncio aggiornato il 22/01/2026
Descrizione

This description has been translated automatically and may not be accurate

riferimento: 3910

Appartamento Barbariga, Vodnjan, 66,65m2

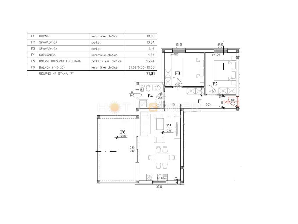
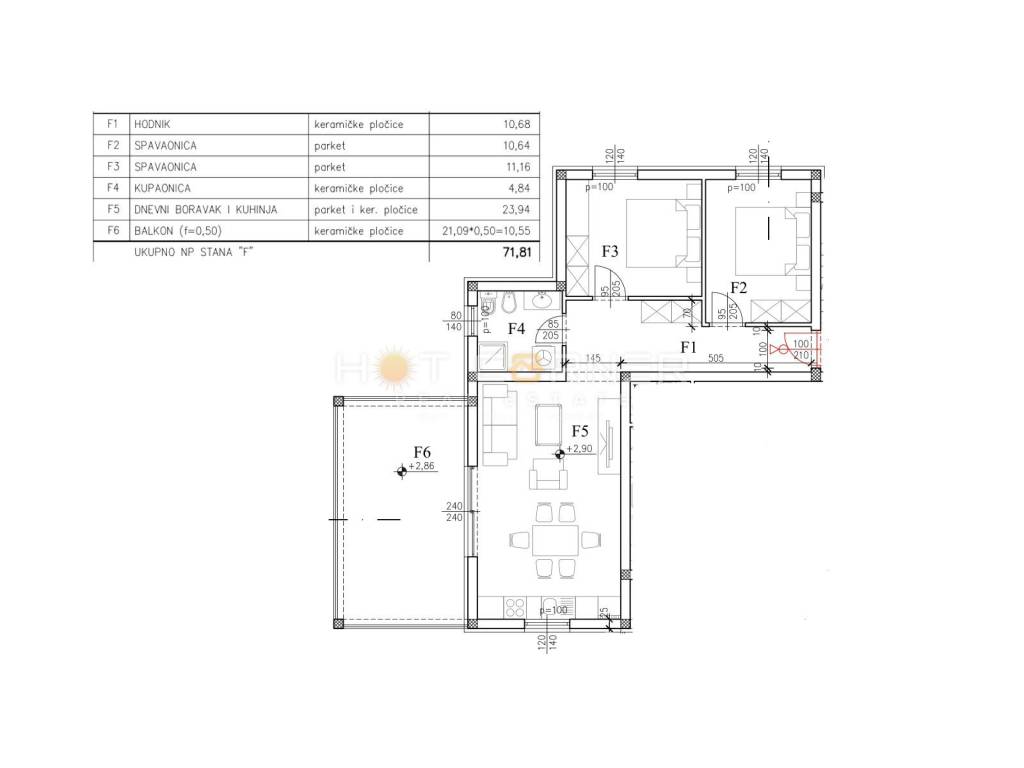
In vendita un bellissimo appartamento moderno in una nuova costruzione a Barbariga, Vodnjan, superficie 63,52 m2, al 1° piano di una piccola palazzina residenziale con solo 6 appartamenti con vista mare. L'edificio si trova a soli 300 m dal mare e dalle spiagge. L'appartamento si trova al 1° piano ed è composto da ingresso (10,68 mq), 2 camere da letto (10,64 mq e 11,16 mq), soggiorno con cucina e sala da pranzo (23,94 mq), bagno (4,84 mq) e ampio terrazze (21,09 mq, superficie netta ridotta 10,55 mq). Complessivamente 71,81

La costruzione di alta qualità e il design moderno consentiranno una piacevole vita familiare, ma impressioneranno sicuramente i turisti in cerca di una vacanza. Ottima posizione, vicino al mare, alle spiagge e a tutti i servizi e le attrazioni.

L'appartamento sarà dotato di porte d'ingresso antieffrazione, carpenteria esterna in PVC con persiane, aria condizionata inverter, laminato nelle camere da letto e nel soggiorno e piastrelle in ceramica di alta qualità nelle altre stanze dell'appartamento. Citofono, prese ed interruttori, antenna, servizi igienici, boiler, doccia. Le uscite sui terrazzi saranno realizzate con pareti scorrevoli. Facciata Demit sull'edificio.

L'appartamento dispone inoltre di 1 posto auto esterno.

Tutti gli appartamenti in offerta:

PIANTERRENO:
Appartamento A al piano terra = 63,52 mq + posto auto esterno = 66,50 mq = 266.600,00 euro
Appartamento B al piano terra = 67,88 mq + posto auto esterno = 71,01 mq = 284.040,00 euro
Appartamento C al piano terra = 63,24 mq + posto auto esterno = 66,37 mq = 265.480,00 euro

1° PIANO:
Appartamento D al 1° piano = 59,79 mq + posto auto esterno = 62,92 mq = 251.680,00 euro
Appartamento E al 1° piano = 67,88 mq + posto auto esterno = 71,01 mq = 284.040,00 euro
Appartamento F al 1° piano = 71,81 mq + posto auto esterno = 74,94 mq = 299.760,00 euro

Proprietà in ordine 1/1, senza gravami.

Al prezzo d'acquisto concordato l'acquirente paga la commissione d'agenzia concordata secondo le condizioni contrattuali e gli onorari della società.

Contatto:
Decano
+385 99 369 9053

ID CODE: 3910

Dean Ostović
Ovlašteni agent
Mob: +385 99 369 9053
Tel: +385 52 212 841
Fax: +385 52 212 841
E-mail: dean@hotcorner.hr
www.hotcorner.hr
Caratteristiche
Tipologia
Appartamento
Contratto
Vendita
Piano
Piano terra
Ascensore
No
Superficie
74 m²
Locali
3
Camere da letto
2
Bagni
1
Balcone
Terrazzo
Box, posti auto
1 posto auto
Climatizzazione
Autonomo, freddo/caldo
Informazioni sul prezzo
Prezzo
€ 284.800
Prezzo al m²
3.849 €/m²
Efficienza energetica
  • Anno di costruzione

    2025
  • Climatizzatore

    Autonomo, freddo/caldo
  • Certificazione energetica

    Non classificabile
Planimetria
Scopri ogni angolo dell'immobile
+8
Opzioni aggiuntive

Contatta l'inserzionista

Oppure