Terreno edificabile in Vendita

€ 250.000
661 m²

Nota

Annuncio aggiornato il 14/02/2026
Descrizione

This description has been translated automatically and may not be accurate

riferimento: 4520

Malinska, Terreno edificabile, progetto per casa bifamiliare

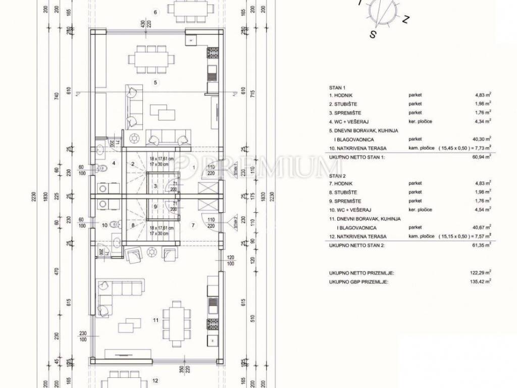
Malinska, immediate vicinanze, in vendita, terreno edificabile di 661 m² con progetto per una casa bifamiliare moderna!

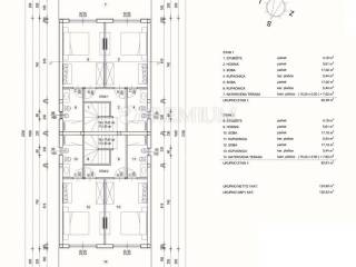
Secondo il progetto principale, la casa è composta da cantina, piano terra e primo piano, con una superficie totale di 356 m² e due unità abitative di circa 178 m² ciascuna.
Ogni unità abitativa dispone di una cantina di 54 m² composta da due camere da letto e due bagni. I piani terra di circa 60 m² comprendono soggiorno open space con cucina e sala da pranzo, corridoio e WC con lavanderia. Dal soggiorno si accede a terrazze coperte e giardini con piscine e solarium. I piani superiori, di circa 62 m², comprendono due camere da letto, due bagni e terrazze coperte.

Ad ogni unità abitativa appartengono due posti auto.

Posizione tranquilla vicino a tutti i servizi!

È in corso la procedura per ottenere il permesso di costruzione.

È possibile acquistare tre terreni edificabili con progetti per tre case bifamiliari, rendendo questa offerta un’opportunità di investimento estremamente interessante!

Per ulteriori informazioni e per fissare un appuntamento per la visita, contattare Premium Nekretnine Malinska.

ID CODE: 4520

Premium nekretnine Malinska
Mob: +385915474709
Tel: +38551858364
E-mail: info@premium-nekretnine.com
Caratteristiche
Contratto
Vendita
Tipologia
Terreno edificabile
Superficie
661 m²
Informazioni sul prezzo
Prezzo
€ 250.000
Prezzo al m²
378 €/m²
Scopri ogni angolo dell'immobile
+8
Opzioni aggiuntive

Contatta l'inserzionista

Oppure