Terreno edificabile in Vendita

€ 250.000
512 m²

Nota

Annuncio aggiornato il 06/02/2026
Descrizione

This description has been translated automatically and may not be accurate

riferimento: 4573

Terreno edificabile a Vrbnik con vista mare!

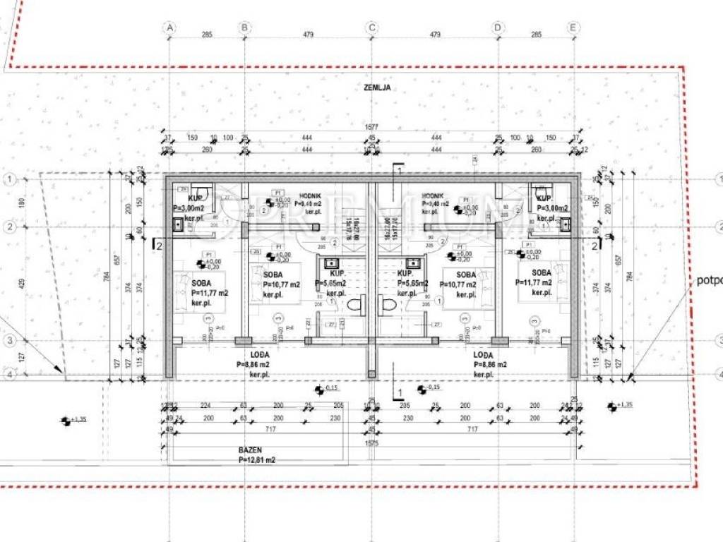
In vendita un terreno edificabile a Vrbnik, sull’isola di Krk, situato a circa 350 metri dal mare. Il terreno ha una forma regolare che consente una pianificazione semplice del futuro edificio. La posizione è tranquilla e gradevole, vicino alla spiaggia e ai servizi essenziali, ideale per la costruzione di una casa familiare o di una residenza per vacanze.

È stato avviato il processo di ottenimento del permesso di costruire sulla base del progetto principale, che prevede la realizzazione di una casa indipendente con due unità abitative, ciascuna con la propria piscina. Le infrastrutture comunali si trovano nelle immediate vicinanze, mentre la vista mare conferisce ulteriore valore e un’atmosfera speciale.

Si tratta di un terreno con un ottimo potenziale, adatto all’uso personale o come investimento.

ID CODE: 4573

Premium nekretnine Malinska
Mob: +385915474709
Tel: +38551858364
E-mail: info@premium-nekretnine.com
Caratteristiche
Contratto
Vendita
Tipologia
Terreno edificabile
Superficie
512 m²
Informazioni sul prezzo
Prezzo
€ 250.000
Prezzo al m²
488 €/m²
Scopri ogni angolo dell'immobile
+5
Opzioni aggiuntive

Contatta l'inserzionista

Oppure