Terreno edificabile in Vendita

€ 350.000
1.106 m²

Nota

Annuncio aggiornato il 01/05/2026
Descrizione

riferimento: 470

ŠESTINSKI VRH - zemljište površine 1106m2 sa pravomoćnom građevinskom dozvolom.
O projektu:
Kuća Maloca je individualna stambena građevina koja je smještena na obroncima sjevernog dijela Zagreba u mirnoj, slijepoj ulici s nekoliko kuća, Šestinski vrh bb.

Građevna čestica je skoro pravilnog pravokutnog oblika s nagibom terena u smjeru sjever - jug te istok-zapad, s koje se pruža pogled na cijeli grad.

Koncept naglašava moderno urbano stanovanje na principima ekološke drvene gradnje, te spoj suvremene arhitekture na principima Feng Shui škole.

Kuća je tlocrtno pravokutnog oblika, geometrijski čistih linija i forme proizašla inspiracijom za vrijeme boravka u tradicionalnoj kući namijenjenoj za ceremonije u Peruanskoj Amazoni, po čemu je i dobila naziv Maloca (Long House).

Ideja je bila da takva forma izranja na stupovima direktno iz prirodnog terena i okoliša, poštujući lokaciju, prirodni nagib terena, sa što manje intervencija u postojeću zemlju i prirodu. Orijentacija prema stranama svijeta omogućila je idealno pozicioniranje kuće sa zaštitom na sjevernoj strani, te otvorenost staklenim stijenama i natkrivenima terasama prema jugu i zapadu, odnosno prema šumi i vrtu. Ljeti je zaštićena krošnjama bjelogorice koje joj daju hlad, a zimi se otvara pogled na cijeli grad, te je omogućeno osunčanje. Natkrivenost terasa proizašla je iz izračuna insolacije na način da se dobije maksimalna iskorištenost sunčeve topline kroz godišnja doba.

Konstrukcija stupova i prve stropne ploče je armirano-betonska, dok je cijela ostala konstrukcija kuće od CLT-a (križno lamelirano drvo), koja osim izvrsnih nosivih ima i povoljna ekološka, estetska i energetska svojstva zbog čega je uglavnom ostavljena vidljiva u interijeru i eksterijeru.

Fasadna obloga je također drvena, obrađena Shou Sugi Ban tehnikom nastalom u Japanu u 18. st. i koristi se za tretiranje drva kako bi bilo otporno na sve vremenske uvjete, te se ne mora održavati, a rezultat ove tehnike otkriva čiste jasne linije i neizmjernu ljepotu teksture drveta koja je nepromjenjiva.

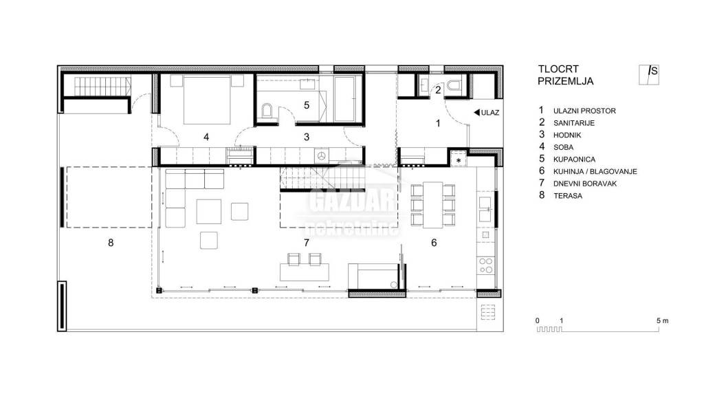
Kuća je planirana s tri nadzemne etaže maksimalno poštujući okoliš. Prva nadzemna etaža je suteren u kojem je smještena garaža i tehničke prostorije. U prizemlju kao glavnoj etaži smješten je ulazni prostor na istoku, kuhinja na jugoistoku, blagovanje, radni prostor i dnevni boravak na jugozapadu, idealno pozicionirani prema Feng Shui principima. U mirnijem dijelu prizemlja smještena je spavaća soba s kupaonicom i izlazom na terasu. Uvučeni kat povezan je prizemljem s galerijom i unutarnjim stepenicama, a na galeriji se nalazi prostor za jogu, meditaciju i opuštanje s pogledom na šumu i grad. U mirnijem dijelu kata nalazi se spavaća soba s kupaonicom. Predviđena su dva parkirališno-garažna mjesta, jedno u garaži u suterenu i drugo na građevnoj čestici na predviđenom mjestu uz kolni pristup garaži.

ID CODE: 470

Gazdar nekretnine
Mob: +385 99 4637 284
E-mail: info@gazdar.hr
www.gazdar.hr
Caratteristiche
Contratto
Vendita
Tipologia
Terreno edificabile
Superficie
1.106 m²
Informazioni sul prezzo
Prezzo
€ 350.000
Prezzo al m²
316 €/m²
Planimetria
Scopri ogni angolo dell'immobile
+4
Opzioni aggiuntive

Contatta l'inserzionista

Oppure