Trilocale Primošten, Capocesto

€ 375.000
3
95 m²
1
T
Terrazzo

Nota

Annuncio aggiornato il 22/01/2026
Descrizione

This description has been translated automatically and may not be accurate

riferimento: 188

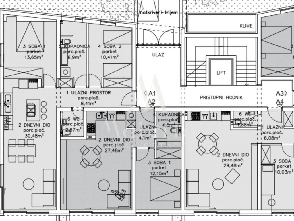
Apartment A1 is located on the ground floor of a modern residential building, featuring a functional layout and generous outdoor spaces. The net usable area is 95.67 m².

Floor plan and room layout:

Entrance area – 8.41 m²

Bedroom 1 – 13.65 m²

Bedroom 2 – 10.41 m²

Bathroom – 6.9 m²

WC – 2.67 m²

Living room with kitchen and dining area – 30.48 m²

Covered terrace – 15.51 m²

Uncovered terrace – 15.43 m²

Storage room – 5.63 m²

Garage parking space – 21.8 m²

The terraces offer an open sea view, adding extra value to the property and making it ideal for year-round enjoyment of the Mediterranean lifestyle.

Technical features and equipment:

ALU windows with IZO glass, LOW-E coating, and argon filling

Electric ALU shutters with thermal insulation and integrated insect screens

Burglar- and fire-resistant ALU entrance door (sound- and heat-insulated)

Multi-split inverter air conditioning with hidden indoor units

Electric underfloor heating in the bathrooms

ETICS façade system with 10 cm stone wool insulation

LED lighting in all rooms

Prepared infrastructure for EV chargers in the garage

Elevator connecting all building levels directly with the underground garage

The building offers direct access from the underground garage via elevator. All apartments are south-facing, ensuring plenty of natural light throughout the year.

Available apartments in the project:

A1 – €375,000

A2 – €265,000

A3 – €375,000

A4 – €330,000

B1 – €390,000

B3 – €320,000

C2 – €245,000

D1 – €790,000

D2 – €670,000

Location and distances:

Primošten town center and beach: 750 m

Marina Kremik: 2 km

Split Airport: approx. 35 km

City of Šibenik: approx. 25 km

For more information or to arrange a viewing, feel free to contact us.

ID CODE: 188

Iva Kalabrić
Mob: +385995616651
E-mail: iva@materra.estate
www.materra.estate
Caratteristiche
Tipologia
Appartamento
Contratto
Vendita
Piano
Piano terra
Piani edificio
3
Ascensore
Superficie
95 m²
Locali
3
Camere da letto
2
Bagni
1
Balcone
No
Terrazzo
Box, posti auto
1 in box privato/box in garage, 1 posto auto
Informazioni sul prezzo
Prezzo
€ 375.000
Prezzo al m²
3.947 €/m²
Efficienza energetica
  • Certificazione energetica

    Non classificabile
Scopri ogni angolo dell'immobile
+11
Opzioni aggiuntive

Contatta l'inserzionista

Oppure