Quadrilocale Primošten, Capocesto

€ 390.000
4
97 m²
1
1
No

Nota

Annuncio aggiornato il 22/01/2026
Descrizione

This description has been translated automatically and may not be accurate

riferimento: 191

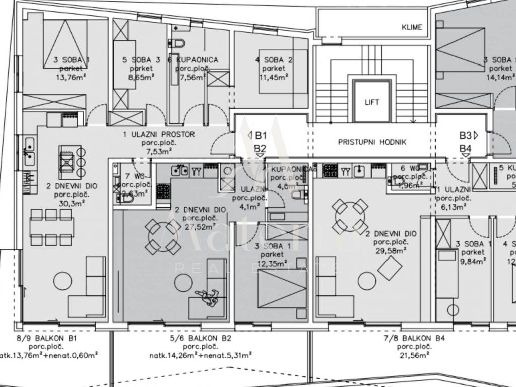
Apartment B1 is located on the first floor of a modern residential building and stands out for its functional layout and generous outdoor spaces. The net usable area is 97.56 m².

Floor Plan and Room Layout:

Entrance area – 7.53 m²

Bedroom 1 – 13.76 m²

Bedroom 2 – 11.45 m²

Bedroom 3 – 8.65 m²

Bathroom – 7.56 m²

WC – 2.63 m²

Living room with kitchen and dining area – 30.3 m²

Covered terrace – 13.76 m²

Uncovered terrace – 0.6 m²

Storage room – 4.72 m²

Garage parking space – 17.5 m²

The terraces offer an open sea view, adding additional value to the property and making it ideal for year-round enjoyment of the Mediterranean lifestyle.

Technical Specifications and Features:

ALU windows with IZO glass, LOW-E coating, and argon gas

Electric ALU shutters with thermal insulation and integrated insect screens

Burglar- and fire-resistant ALU entrance doors (sound and heat insulated)

Multi-split inverter air conditioning with concealed indoor units

Electric underfloor heating in bathrooms

ETICS façade system with 10 cm stone wool insulation

LED lighting throughout all rooms

Pre-installation for electric vehicle chargers in the garage

Elevator connecting all levels of the building

The building offers direct access from the underground garage via elevator. All apartments are south-facing, providing plenty of natural light throughout the year.

Available Apartments in the Project:

A1 – €375,000

A2 – €265,000

A3 – €375,000

A4 – €330,000

B1 – €390,000

B3 – €320,000

C2 – €245,000

D1 – €790,000

D2 – €670,000

Location and Distances:

Primošten town center and beach: 750 m

Marina Kremik: 2 km

Split Airport: approx. 35 km

City of Šibenik: approx. 25 km

For more information or to schedule a viewing, feel free to contact us.

ID CODE: 191

Iva Kalabrić
Mob: +385995616651
E-mail: iva@materra.estate
www.materra.estate
Caratteristiche
Tipologia
Appartamento
Contratto
Vendita
Piano
1 piano
Piani edificio
3
Ascensore
No
Superficie
97 m²
Locali
4
Camere da letto
3
Bagni
1
Balcone
No
Terrazzo
No
Box, posti auto
1 in box privato/box in garage, 1 posto auto
Informazioni sul prezzo
Prezzo
€ 390.000
Prezzo al m²
4.021 €/m²
Efficienza energetica
  • Anno di costruzione

    2025
  • Certificazione energetica

    Non classificabile
Scopri ogni angolo dell'immobile
+11
Opzioni aggiuntive

Contatta l'inserzionista

Oppure