Quadrilocale Primošten, Capocesto

€ 390.000
4
93 m²
1
2
No
Balcone

Nota

Annuncio aggiornato il 22/01/2026
Descrizione

This description has been translated automatically and may not be accurate

riferimento: 193

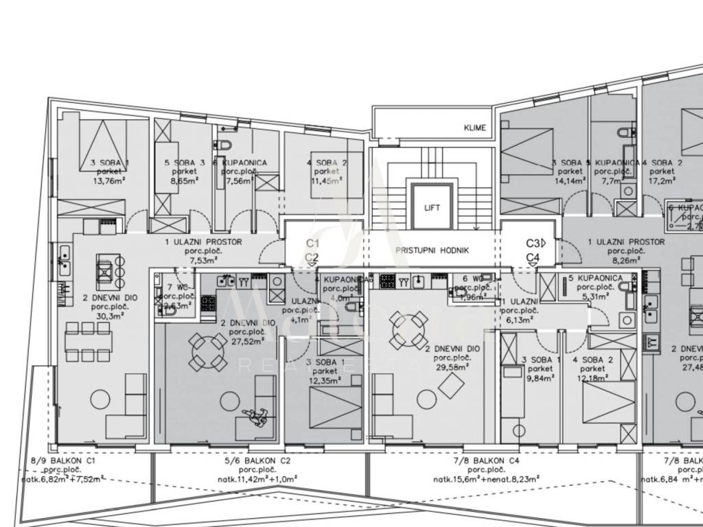
Apartment C1 is located on the second floor of a modern residential building and is distinguished by its functional layout and generous outdoor spaces. The net usable area is 93.76 m².

Floor Plan and Room Layout:

Entrance area – 7.53 m²

Bedroom 1 – 13.76 m²

Bedroom 2 – 11.45 m²

Bedroom 3 – 8.65 m²

Bathroom 1 – 7.56 m²

WC – 2.63 m²

Living room with kitchen and dining area – 30.3 m²

Covered balcony – 6.82 m²

Uncovered balcony – 7.52 m²

Storage room – 4.6 m²

Garage parking space – 13.5 m²

The balconies offer an open sea view, which adds extra value to the property and makes it ideal for year-round enjoyment of the Mediterranean lifestyle.

Technical Specifications and Equipment:

ALU joinery with IZO glass, LOW-E coating, and argon gas

Electric ALU shutters with thermal insulation and integrated insect screens

Burglar- and fire-resistant ALU entrance doors (sound and thermal insulation)

Multi-split inverter air conditioning with concealed indoor units

Electric underfloor heating in bathrooms

ETICS façade system with 10 cm stone wool insulation

LED lighting in all rooms

Pre-installation for electric vehicle chargers in the garage

Elevator connecting all floors of the building

The building offers direct access from the underground garage via elevator. All apartments are south-facing, providing an abundance of natural light throughout the year.

Available Apartments in the Project:

A1 – €375,000

A2 – €265,000

A3 – €375,000

A4 – €330,000

B1 – €390,000

B3 – €320,000

C2 – €245,000

D1 – €790,000

D2 – €670,000

Location and Distances:

Primošten town center and beach: 750 m

Marina Kremik: 2 km

Split Airport: approx. 35 km

City of Šibenik: approx. 25 km

For more information or to schedule a property tour, feel free to contact us.

ID CODE: 193

Iva Kalabrić
Mob: +385995616651
E-mail: iva@materra.estate
www.materra.estate
Caratteristiche
Tipologia
Appartamento
Contratto
Vendita
Piano
2 piano
Piani edificio
3
Ascensore
No
Superficie
93 m²
Locali
4
Camere da letto
3
Bagni
1
Balcone
Terrazzo
No
Box, posti auto
1 in box privato/box in garage, 1 posto auto
Informazioni sul prezzo
Prezzo
€ 390.000
Prezzo al m²
4.194 €/m²
Efficienza energetica
  • Anno di costruzione

    2025
  • Certificazione energetica

    Non classificabile
Scopri ogni angolo dell'immobile
+11
Opzioni aggiuntive

Contatta l'inserzionista

Oppure