Trilocale Primošten, Capocesto

€ 331.000
3
73 m²
1
1
No
Terrazzo

Nota

Annuncio aggiornato il 22/04/2026
Descrizione

This description has been translated automatically and may not be accurate

riferimento: 231

An elegant apartment is for sale in a quiet and well-maintained part of Primošten, located on the first floor of a newly built residential building with a total of seven units. The location offers the perfect combination of privacy and accessibility – close to all amenities yet tucked away from the summer crowds.

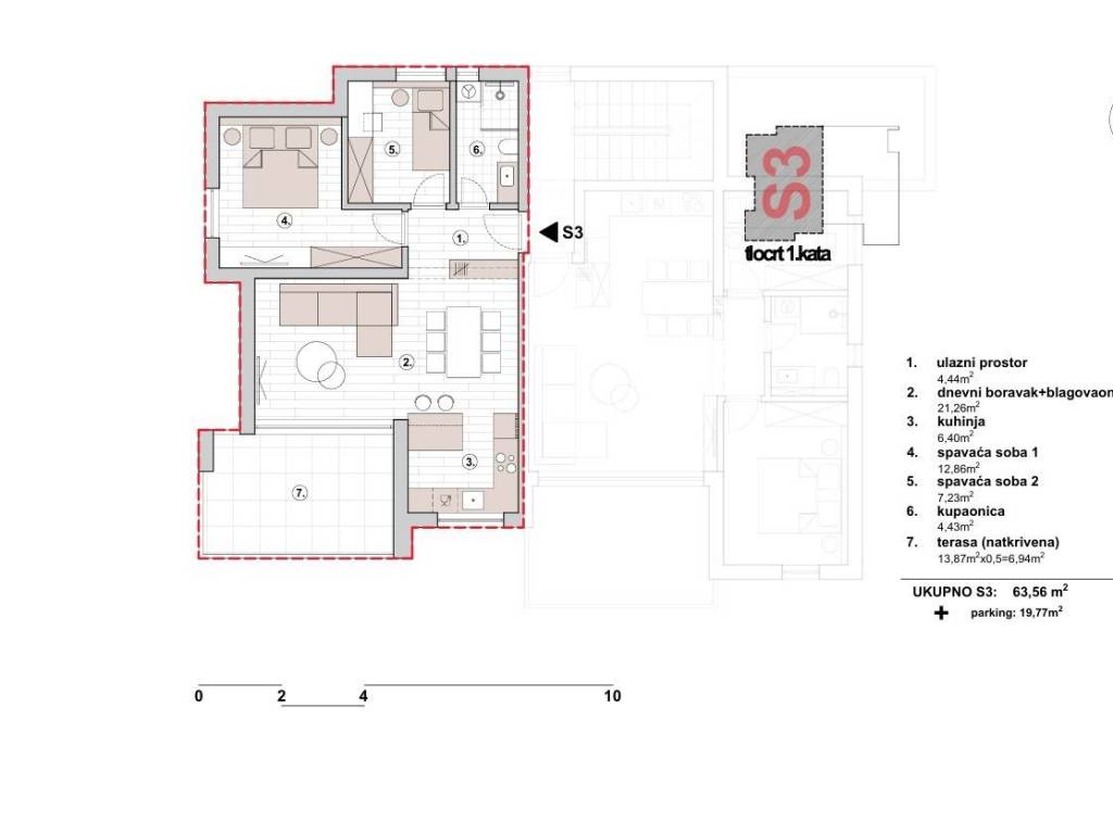
The apartment has a total area of 73.45 m², featuring a functional layout and bright interior. The central part is an open-plan living room with kitchen and dining area (21.26 m²). It includes two bedrooms, one bathroom, an entrance hall, and a covered terrace of 6.94 m².

The building is being constructed to the highest standards using premium materials. Reinforced concrete structure, façade insulated with 10 cm stone wool. Exterior aluminum windows with triple glazing, electric shutters, and insect screens. The apartment includes security doors, underfloor heating, air conditioning in every room, and top-quality ceramic and parquet flooring (with multiple options available for the buyer).

A private parking space is provided, either in the garage or outside, each with an electric vehicle charging station. The property is currently under construction, with structural completion scheduled for early 2026 and move-in expected by the end of 2026. Buyers have the opportunity to personalize the interior finishes in consultation with the developer.

For more information and to arrange a viewing, please contact us.

ID CODE: 231

Andro Jakoliš
Mob: +385 99 347 3562
E-mail: andro@materra.estate
www.materra.estate
Caratteristiche
Tipologia
Appartamento
Contratto
Vendita
Piano
1 piano
Piani edificio
4
Ascensore
No
Superficie
73 m²
Locali
3
Camere da letto
2
Bagni
1
Balcone
No
Terrazzo
Box, posti auto
1 in box privato/box in garage, 1 posto auto
Informazioni sul prezzo
Prezzo
€ 331.000
Prezzo al m²
4.534 €/m²
Efficienza energetica
  • Certificazione energetica

    Non classificabile
Scopri ogni angolo dell'immobile
+7
Opzioni aggiuntive

Contatta l'inserzionista

Oppure