Trilocale Primošten, Capocesto

€ 286.000
3
66 m²
1
1
No
Terrazzo

Nota

Annuncio aggiornato il 22/04/2026
Descrizione

This description has been translated automatically and may not be accurate

riferimento: 232

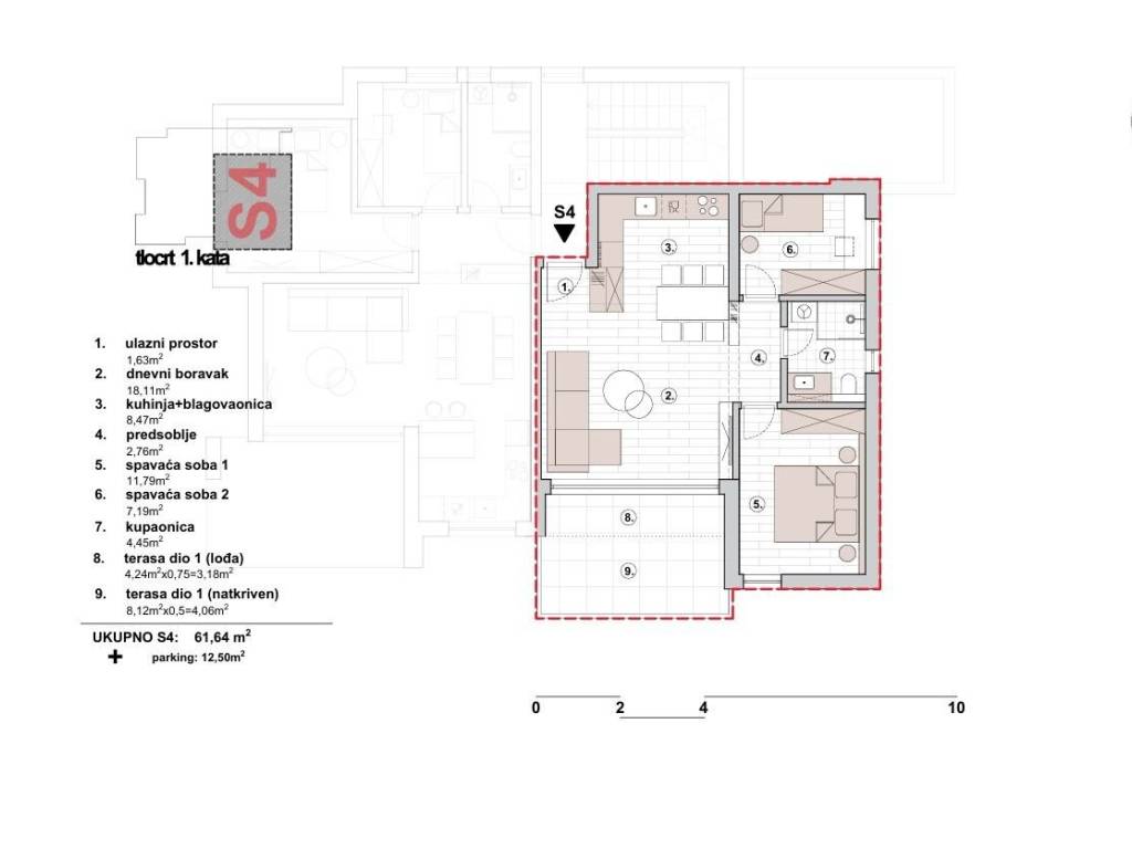
Apartment S4 is located on the first floor of a modern residential building and stands out with its functional layout and spacious outdoor areas. The total living area is 66.64 m², and it includes a garage parking space of 12.5 m² with an EV charging station.

Layout and room sizes:

Entrance hall: 1.63 m²
Living room: 18.11 m²
Kitchen and dining area: 8.47 m²
Hallway: 2.76 m²
Bedroom 1: 11.79 m²
Bedroom 2: 7.19 m²
Bathroom: 4.45 m²
Terrace (loggia): 3.18 m²
Terrace (covered part): 4.06 m²

The terraces offer an open sea view, adding significant value and making the apartment ideal for year-round enjoyment of the Mediterranean lifestyle.

Technical features and equipment:

Reinforced concrete structure
Façade insulated with 10 cm stone wool
Aluminum windows with triple glazing
Electric shutters and mosquito screens in bedrooms
Security entrance doors
Underfloor heating
Air conditioning in every room
First-class ceramic tiles and parquet flooring (various options available for the buyer)
Hörmann garage door
Private parking space with EV charger

Advantages and additional information:
All apartments in the building are south-facing, ensuring plenty of natural light throughout the year. Parking is available in the garage and outdoors, each space equipped with an EV charging station.

Construction status:
The building is currently under construction, with structural works in progress. Completion of the structure is planned for early 2026, with handover expected by the end of 2026. Buyers have the opportunity to customize the interior finishes in consultation with the developer.

Location and distances:

Primošten center and beach: 1.5 km
Marina Kremik: 4 km
Šibenik: 30 km
Split International Airport: approx. 40 km

For more information or to arrange a viewing, please contact us.

ID CODE: 232

Andro Jakoliš
Mob: +385 99 347 3562
E-mail: andro@materra.estate
www.materra.estate
Caratteristiche
Tipologia
Appartamento
Contratto
Vendita
Piano
1 piano
Piani edificio
4
Ascensore
No
Superficie
66 m²
Locali
3
Camere da letto
2
Bagni
1
Balcone
No
Terrazzo
Box, posti auto
1 in box privato/box in garage, 1 posto auto
Informazioni sul prezzo
Prezzo
€ 286.000
Prezzo al m²
4.333 €/m²
Efficienza energetica
  • Certificazione energetica

    Non classificabile
Scopri ogni angolo dell'immobile
+7
Opzioni aggiuntive

Contatta l'inserzionista

Oppure