Quadrilocale Primošten, Capocesto

€ 681.000
4
123 m²
2
3
No
Terrazzo

Nota

Annuncio aggiornato il 22/04/2026
Descrizione

This description has been translated automatically and may not be accurate

riferimento: 235

For sale is Apartment S7, a spacious 3-bedroom apartment on the 3rd floor of a modern residential building in a quiet area of Primošten. The building is situated on a gentle elevation, offering unobstructed panoramic views of the Adriatic Sea. Distance to the sea and beaches: only 1,500 meters.

The building consists of four floors with a total of seven luxury apartments.

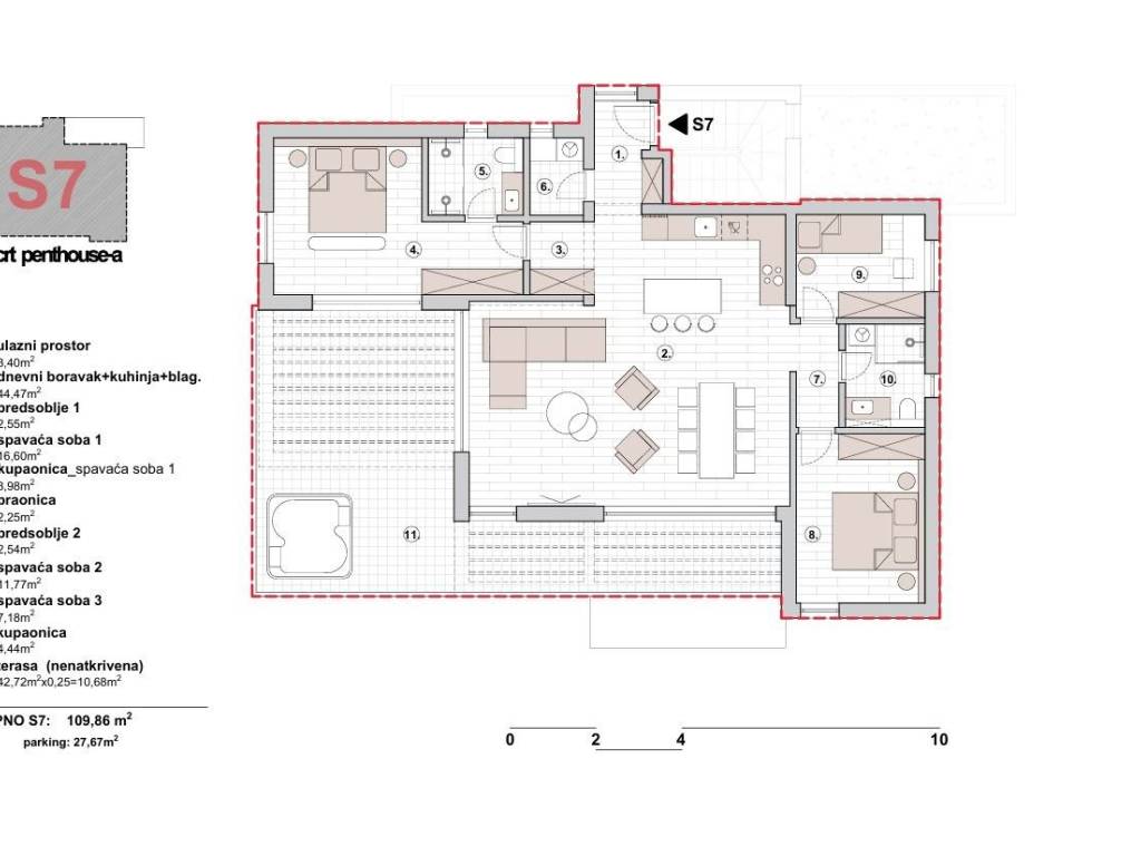
Apartment S7 – layout:

Entrance hall: 3.40 m²
Living room + kitchen + dining area: 44.47 m²
Hallway 1: 2.55 m²
Bedroom 1: 16.60 m²
Ensuite bathroom: 3.98 m²
Laundry room: 2.25 m²
Hallway 2: 2.54 m²
Bedroom 2: 11.77 m²
Bedroom 3: 7.18 m²
Bathroom: 4.44 m²
Terrace (open): 10.68 m²

Private parking space with EV charger: 27.67 m²

Construction quality and equipment:

Reinforced concrete structure
Façade insulated with 10 cm stone wool
Aluminum windows with triple glazing
Electric shutters and mosquito screens in bedrooms
Underfloor heating
Air conditioning in every room
High-quality ceramic and parquet flooring (various options for buyers)
Security entrance doors
Hörmann garage door
Jacuzzi

Construction status:
The building is currently under construction, with structural works in progress. Completion is expected in early 2026, with handover by the end of 2026. Buyers have the opportunity to customize the interior finishes in consultation with the developer.

Location – peaceful oasis near the center:
The apartment is located in a quiet part of Primošten, offering privacy and a relaxed lifestyle, while all amenities – beaches, restaurants, and shops – are within easy reach. Primošten is renowned for its crystal-clear sea, pebble beaches, excellent gastronomy, and authentic Dalmatian atmosphere.

For more information or to arrange a viewing, please contact us.

ID CODE: 235

Andro Jakoliš
Mob: +385 99 347 3562
E-mail: andro@materra.estate
www.materra.estate
Caratteristiche
Tipologia
Appartamento
Contratto
Vendita
Piano
3 piano
Ascensore
No
Superficie
123 m²
Locali
4
Camere da letto
3
Bagni
2
Balcone
No
Terrazzo
Box, posti auto
1 in box privato/box in garage, 1 posto auto
Informazioni sul prezzo
Prezzo
€ 681.000
Prezzo al m²
5.537 €/m²
Efficienza energetica
  • Certificazione energetica

    Non classificabile
Scopri ogni angolo dell'immobile
+7
Opzioni aggiuntive

Contatta l'inserzionista

Oppure