Quadrilocale Vodice, Vodizze

€ 635.000
4
193 m²
3
No

Nota

Annuncio aggiornato il 25/03/2026
Descrizione

This description has been translated automatically and may not be accurate

riferimento: 360

Construction of a modern residential building with three terraced units will begin in winter 2026. The property is located in a new residential area of Vodice, in a quiet location, 800 m from the beach and 1,200 m from the town center.

Key information:

duplex apartment offering enhanced privacy
private swimming pool and fenced garden
high-quality new construction with modern equipment
planned move-in date: 10/2026

Equipment:

aluminum joinery, electric shutters, mosquito nets
underfloor heating via heat pumps
air conditioning in all rooms
glass railings, video surveillance

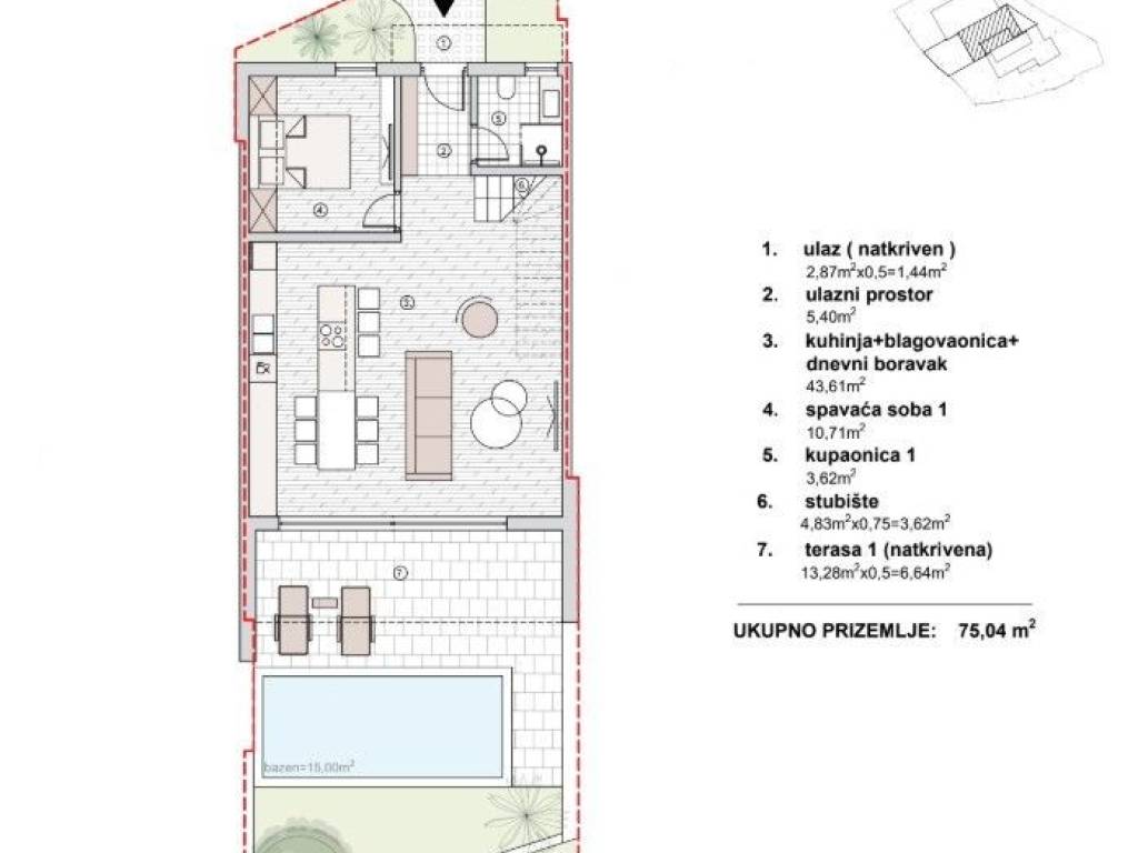
Apartment S2:

total net area: 193.67 m²
layout: ground floor + two floors
3 bedrooms, 3 bathrooms
covered terraces
2 parking spaces

VAT included, the buyer is exempt from paying 3% real estate transfer tax.

For further information and to arrange a viewing, please feel free to contact us.

ID CODE: 360

Andro Jakoliš
Mob: +385 99 347 3562
E-mail: andro@materra.estate
www.materra.estate
Caratteristiche
Tipologia
Appartamento
Contratto
Vendita
Piani edificio
2
Ascensore
No
Superficie
193 m²
Locali
4
Camere da letto
3
Bagni
3
Balcone
No
Terrazzo
No
Box, posti auto
2 posto auto
Climatizzazione
Autonomo, freddo/caldo
Informazioni sul prezzo
Prezzo
€ 635.000
Prezzo al m²
3.290 €/m²
Efficienza energetica
  • Anno di costruzione

    2025
  • Climatizzatore

    Autonomo, freddo/caldo
  • Certificazione energetica

    Non classificabile
Scopri ogni angolo dell'immobile
+7
Opzioni aggiuntive

Contatta l'inserzionista

Oppure