1/33


Quadrilocale Opatija, Centar, Abbazia
€ 1.250.000
Annuncio aggiornato il 22/01/2026
Descrizione
riferimento: E3271
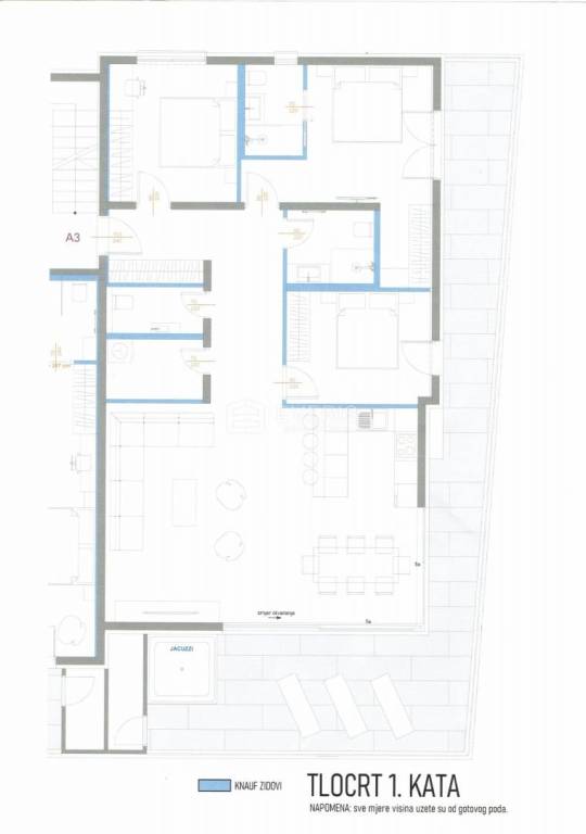
Opatija, 138m2
ID CODE: E3271
Marin Modić
Agent s licencom
Mob: +385 (91) 5954 045
Tel: +385 (0)91 5954 045
E-mail: m.modic@everis.hr
https://nekretnine.everis.hr/
Caratteristiche
- Tipologia
- Appartamento
- Contratto
- Vendita
- Piano
- 2 piano
- Ascensore
- No
- Superficie
- 138 m²
- Locali
- 4
- Camere da letto
- 3
- Bagni
- 2
- Balcone
- Sì
- Terrazzo
- No
- Box, posti auto
- 1 in box privato/box in garage, 2 posto auto
- Climatizzazione
- Autonomo, freddo/caldo
Informazioni sul prezzo
- Prezzo
- € 1.250.000
- Prezzo al m²
- 9.058 €/m²
Scopri ogni angolo dell'immobile
Opzioni aggiuntive