1/7


Bilocale Povljana, Povliana
€ 165.000
Annuncio aggiornato il 22/01/2026
Descrizione
riferimento: 1859
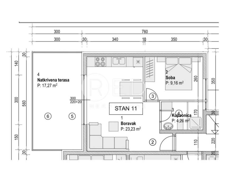
Appartamento Povljana, Ulica Stjepana Radića, 36,65m2
ID CODE: 1859
Lucija Obad
Asistent Agenta
Mob: 0911104077
E-mail: lucija@rednekretnine.com
www.rednekretnine.com
Caratteristiche
- Tipologia
- Appartamento
- Contratto
- Vendita
- Piano
- 2 piano
- Piani edificio
- 2
- Ascensore
- No
- Superficie
- 36 m²
- Locali
- 2
- Camere da letto
- 1
- Bagni
- 1
- Balcone
- No
- Terrazzo
- Sì
- Box, posti auto
- 1 posto auto
- Climatizzazione
- Autonomo, freddo/caldo
Informazioni sul prezzo
- Prezzo
- € 165.000
- Prezzo al m²
- 4.583 €/m²
Scopri ogni angolo dell'immobile
Opzioni aggiuntive