Terreno edificabile in Vendita

€ 79.200
495 m²

Nota

Annuncio aggiornato il 28/01/2026
Descrizione

riferimento: 3906-B

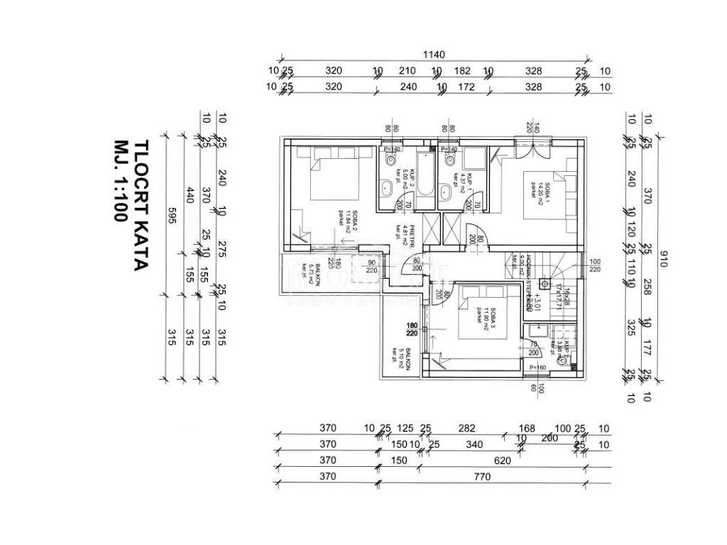
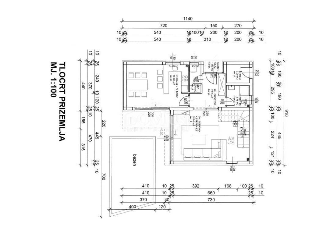
Primošten, Vadalj, mirna lokacija, atraktivno građevinsko zemljište s pogledom na more, sveukupne površine od 495 m². Zemljište ima projektnu dokumentaciju, a građevinska dozvola je u procesu izdavanja za gradnju slobodnostojeće obiteljske kuće na dvije etaže, prizemlje i prvi kat, s ukupnom površinom od 139,43 m² te bazenom. Zemljište ima blagi pad prema zapadnoj strani. Udaljenost od centra mjesta i uređene plaže iznosi 5 km.

ID CODE: 3906-B

Diana Knežević
Mob: 00 385 95 289 4518
Tel: +385 22 444 620
Fax: +385 22 444 621
E-mail: knezevic@domus-nekretnine.hr
http://domus-nekretnine.hr

Martina Silov
Mob: 00385 95 587 8860
Tel: +385 22 444 620
Fax: +385 22 444 621
E-mail: martina@domus-nekretnine.hr
http://domus-nekretnine.hr

Katarina Marasović
Mob: 00 385 98 392 954
Tel: +385 22 444 620
Fax: +385 22 444 621
E-mail: catherine@domus-nekretnine.hr
http://domus-nekretnine.hr
Caratteristiche
Contratto
Vendita
Tipologia
Terreno edificabile
Superficie
495 m²
Informazioni sul prezzo
Prezzo
€ 79.200
Prezzo al m²
160 €/m²
Scopri ogni angolo dell'immobile
+11
Opzioni aggiuntive

Contatta l'inserzionista

Oppure