1/5


Terreno edificabile in Vendita
€ 380.000
Annuncio aggiornato il 22/01/2026
Descrizione
riferimento: 300621003-1358
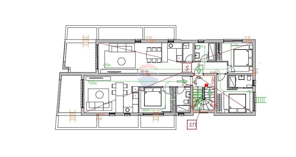
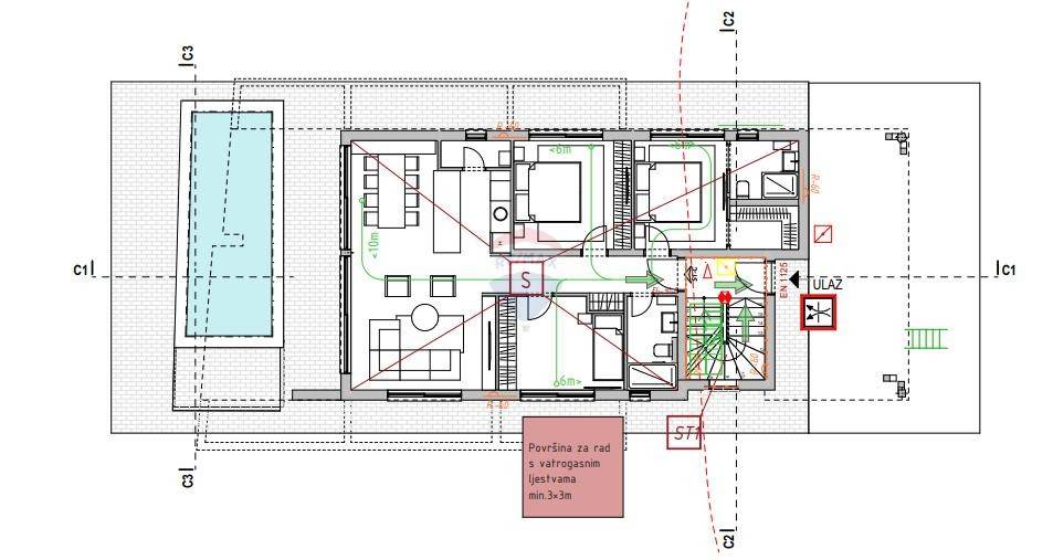
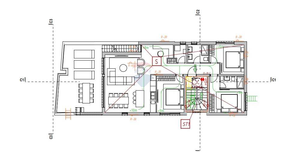
Terreno edificabile Njivice, Omišalj, 546m2
ID CODE: 300621003-1358
Mirela Petrović
Prodajni predstavnik
Mob: +385 91 641 3300
Tel: +385 51 309 703
E-mail: m.petrovic@remax-krk.hr
remax-centarnekretnina.com
Jelena Sindičić
Prodajni predstavnik
Mob: +385 91 641 3138
Tel: +385 51 309 703
E-mail: j.sindicic@remax-krk.hr
remax-centarnekretnina.com
Caratteristiche
- Contratto
- Vendita
- Tipologia
- Terreno edificabile
- Superficie
- 546 m²
Informazioni sul prezzo
- Prezzo
- € 380.000
- Prezzo al m²
- 696 €/m²
Scopri ogni angolo dell'immobile
Opzioni aggiuntive