Trilocale nuovo, piano terra, Dugopolje

€ 220.516
3
75 m²
1
T

Nota

Annuncio aggiornato il 26/03/2026
Descrizione

This description has been translated automatically and may not be accurate

riferimento: ST4689

Dugopolje New construction, two-bedroom apartment with a private garden (A-S1)

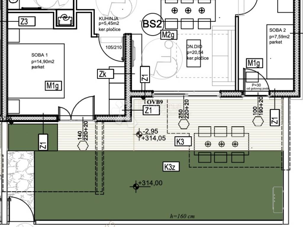
The apartment consists of: an entrance area, kitchen, dining room, living room with access to the garden (26.75 m), two bedrooms with access to the garden, and a bathroom (floor plan attached in the ad).

The calculated floor area of the apartment is 57.11 m.

The garden area amounts to 41.08 m, of which 22.15 m refers to the uncovered part and 18.93 m to the covered part.

The price includes a 3.95 m storage unit located in the basement of the building.

Purchase of an outdoor parking space is mandatory (EUR 14,850; 14.85 m), while the purchase of a garage parking space is optional.

Construction started in September 2025. The expected completion time is 18 months. The construction is being carried out by one of the most reputable and reliable contractors in Dalmatia, ensuring high construction quality.

The project is financed by a bank, making purchase through a mortgage possible.
In case of full payment upon signing the preliminary contract, a 10% discount on the total property price is granted.

The apartment is bright and sunny, with an excellent microlocation, ideal for comfortable family living or as an investment. Close to all important amenities.

For more information:
Ivana Fabiana Buljubašić
+385 91 532 7295
ivana.buljubasic@dogma-nekretnine.com

ID CODE: ST4689

Ivana Fabiana Buljubašić
Agent s licencom
Mob: 091/532-7295
Tel: +385 21 293 201
E-mail: ivana.buljubasic@dogma-nekretnine.com
www.dogma-dalmacija.com
Se vuoi saperne di più, puoi parlare con Ivana Fabiana Buljubašić.
Caratteristiche
Tipologia
Appartamento
Contratto
Vendita
Piano
Piano terra
Ascensore
Superficie
75 m²
Locali
3
Camere da letto
2
Bagni
1
Balcone
No
Terrazzo
No
Box, posti auto
1 in box privato/box in garage
Climatizzazione
Autonomo, freddo/caldo
Informazioni sul prezzo
Prezzo
€ 220.516
Prezzo al m²
2.940 €/m²
Efficienza energetica
  • Anno di costruzione

    2026
  • Stato

    Nuovo / In costruzione
  • Climatizzatore

    Autonomo, freddo/caldo
  • Certificazione energetica

    Esente
Scopri ogni angolo dell'immobile
+4
Inserzionista
agent male

Ivana Fabiana Buljubašić

scheda agenzia
Opzioni aggiuntive

Contatta l'inserzionista

Oppure
agent male

Ivana Fabiana Buljubašić