1/10


Quadrilocale Opatija, Centar, Abbazia
€ 798.000
Annuncio aggiornato il 10/03/2026
Descrizione
riferimento: 300421051-36
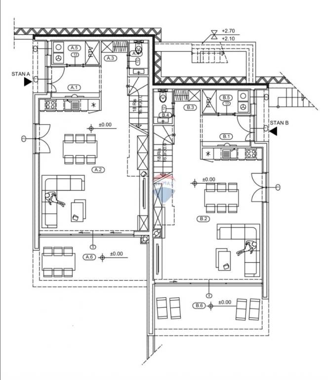
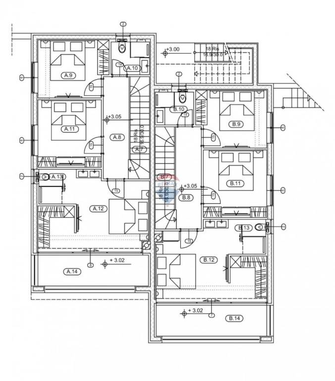
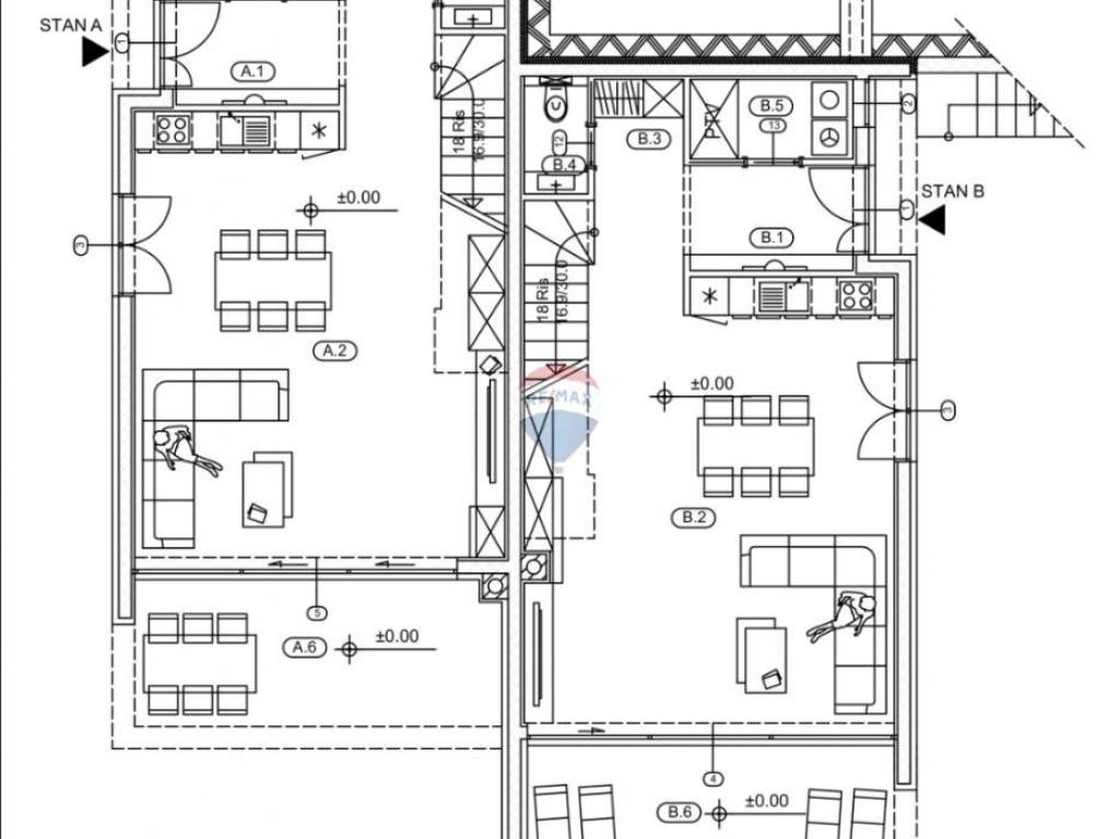
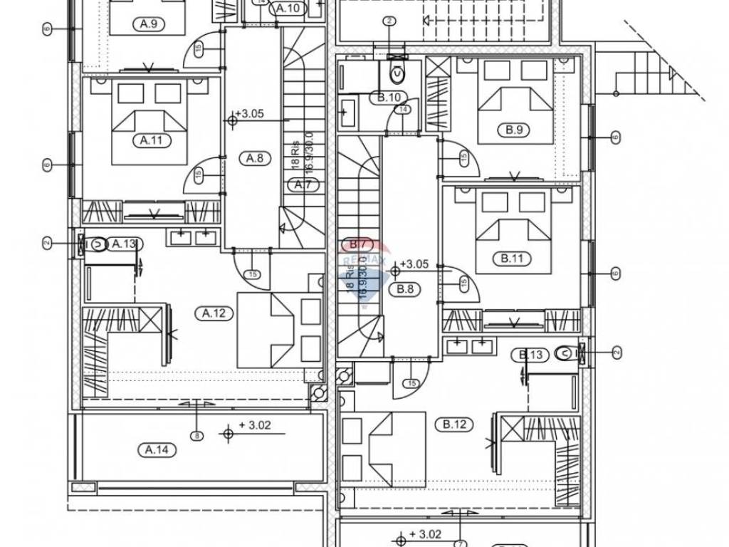
Casa Liganj, Lovran, 139,18m2
ID CODE: 300421051-36
Ana-Marija Dizdar
Suradnik u procesu obuke
Mob: +385 91 641 5510
Tel: +385 51 551 871
E-mail: a.dizdar@remax-opatija.hr
remax-centarnekretnina.com
Caratteristiche
- Tipologia
- Appartamento
- Contratto
- Vendita
- Piano
- 1 piano
- Piani edificio
- 2
- Ascensore
- No
- Superficie
- 139 m²
- Locali
- 4
- Camere da letto
- 3
- Bagni
- 1
- Balcone
- Sì
- Terrazzo
- No
Informazioni sul prezzo
- Prezzo
- € 798.000
- Prezzo al m²
- 5.741 €/m²
Scopri ogni angolo dell'immobile
Opzioni aggiuntive