Terratetto unifamiliare Kanfanar, Canfanaro

€ 675.000
4
208 m²
3
No
Terrazzo

Nota

Annuncio aggiornato il 24/04/2026
Descrizione

This description has been translated automatically and may not be accurate

riferimento: 99

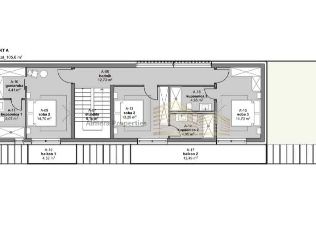
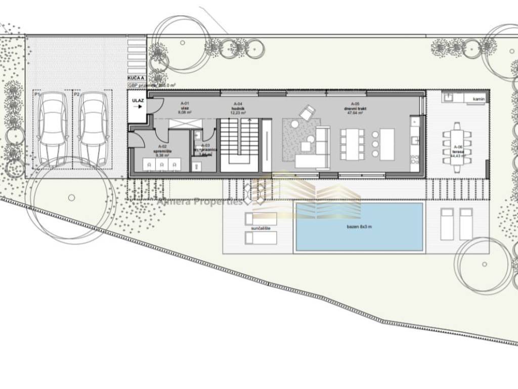
In the centre of Istria, in the town of Kanfanar, a modern house with a swimming pool is for sale, currently under construction with planned completion in the summer of 2025. The house will have an entrance hall, an open space living room with kitchen and dining room, three bedrooms with their bathrooms and an exit to the balcony, one of which has an additional wardrobe, laundry room and toilet.
With its solid concrete-brick construction, the house provides a sense of security and stability. The elegant PVC joinery in anthracite colour contributes to the contemporary impression. Aluminium blinds offer an additional level of privacy and adaptability. The advantage is that it is located at the end of the street and privacy is guaranteed.
The good location and the excellent organisation of the interior and exterior of this house provide an opportunity for a comfortable family life, and also as an investment investment in the tourism business renting.
Amenities such as shops, post offices, and playgrounds are all within walking distance, and you can enjoy the comfort of privacy and accessibility to everything you need. It takes a few minutes to drive to the highway exit.
Central Istria is the heart of the peninsula, where untouched nature, idyllic landscapes, unreal viewpoints and picturesque medieval towns await you to explore. You can enjoy top gastronomy, wine roads, bicycle paths, horse riding, and adrenaline activities. It takes 45 minutes by car to reach two top golf courses.

ID CODE: 99

Almera Properties
Mob: +385 91 5516740
E-mail: info@almeraproperties.hr
www.almeraproperties.hr
Caratteristiche
Tipologia
Terratetto unifamiliare
Contratto
Vendita
Piani edificio
1
Ascensore
No
Superficie
208 m²
Locali
4
Camere da letto
3
Bagni
3
Balcone
No
Terrazzo
Box, posti auto
2 posto auto
Climatizzazione
Autonomo, freddo/caldo
Informazioni sul prezzo
Prezzo
€ 675.000
Prezzo al m²
3.245 €/m²
Efficienza energetica
  • Anno di costruzione

    2024
  • Climatizzatore

    Autonomo, freddo/caldo
  • Certificazione energetica

    Non classificabile
Scopri ogni angolo dell'immobile
+8
Opzioni aggiuntive

Contatta l'inserzionista

Oppure