Terreno edificabile in Vendita

€ 145.000
500 m²

Nota

Annuncio aggiornato il 22/01/2026
Descrizione

This description has been translated automatically and may not be accurate

riferimento: 112-108

Rabac - terreno edificabile con vista mare, 500 m2

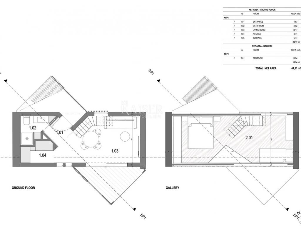
Kaiser Immobilien presenta un bellissimo terreno edificabile con un progetto concettuale e vista sul mare. Il terreno si trova in una zona tranquilla non lontano dalla città di Albona. Albona è conosciuta per la sua ricca storia, le attrazioni culturali e la vicinanza alle bellissime spiagge dell'Istria. Poiché il terreno è a pochi passi dal mare, consente un facile accesso alle spiagge e la possibilità di praticare attività marine. Il quartiere tranquillo contribuisce ulteriormente alla qualità della vita su questa terra. L'ambiente rilassante permette di rilassarsi e godere della privacy, mentre la vicinanza della città di Albona è comoda per accedere a tutti i servizi necessari. Il terreno è di 500 mq ed è prevalentemente pianeggiante. Il campo offre una vista sul mare. In base al progetto concettuale, su questo terreno è prevista una struttura con tre appartamenti e una piscina, distribuiti al piano terra e al primo piano. Gli appartamenti hanno una metratura complessiva di 45 mq e dispongono di terrazzo privato. Ogni appartamento avrà il proprio posto auto. La piscina è destinata all'uso condiviso.

ID CODE: 112-108

Ana Beović
Agent s licencom u posredovanju u prometu nekretnina
Mob: +385916183332, +385995677888
E-mail: ana@kaiser-immobilien.hr
www.kaiser-immobilien.hr
Caratteristiche
Contratto
Vendita
Tipologia
Terreno edificabile
Superficie
500 m²
Informazioni sul prezzo
Prezzo
€ 145.000
Prezzo al m²
290 €/m²
Scopri ogni angolo dell'immobile
+6
Opzioni aggiuntive

Contatta l'inserzionista

Oppure