Terreno edificabile in Vendita

€ 1.060.000
1.822 m²

Nota

Annuncio aggiornato il 23/01/2026
Descrizione

This description has been translated automatically and may not be accurate

riferimento: 100-066

Riviera di Opatija, terreno edificabile con progetto e vista aperta sul mare

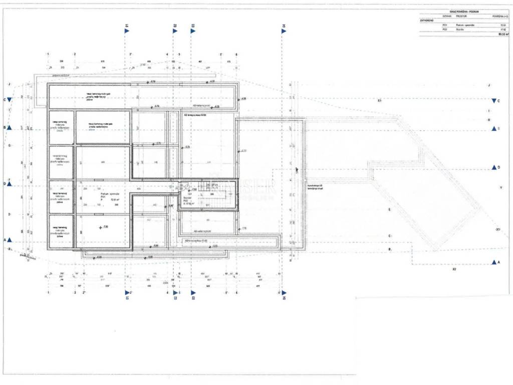
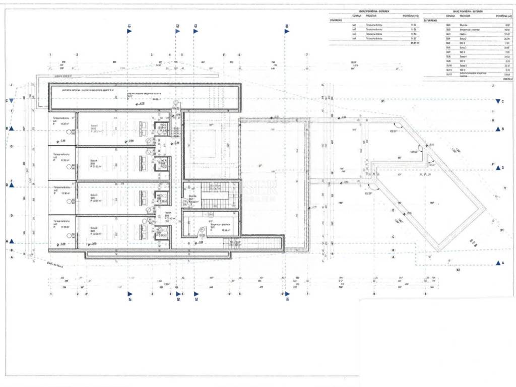
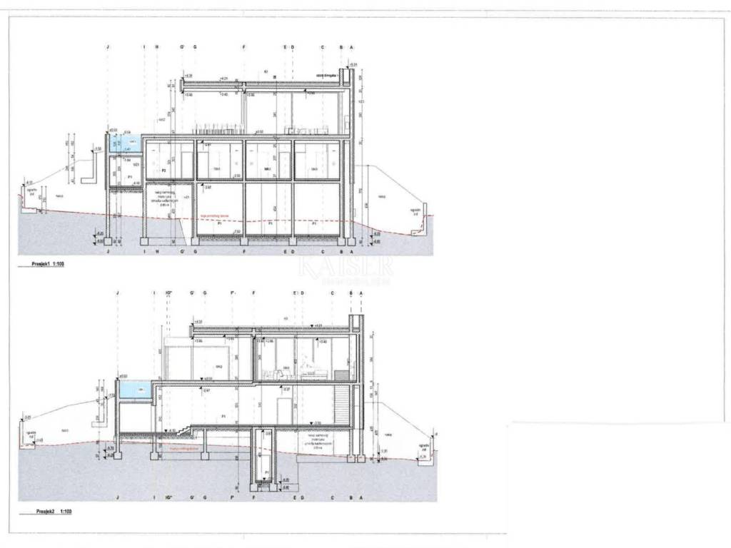
Kaiser Immobilien presenta un esclusivo terreno edificabile di 1822 m2 con l'attuale processo di ottenimento del permesso di costruire. Il terreno è situato in posizione ideale a soli 100 m dal mare, ideale per costruire un'imponente villa con una bellissima vista sul mare e sul Quarnero, di forma rettangolare, con orientamento a sud che garantisce un ambiente soleggiato per tutto il giorno. Il progetto principale prevede una villa con un totale di 618 m2 di superficie abitabile netta e ulteriori 411 m2 di spazio esterno, comprese zone prendisole, terrazzi e terrazzi coperti. La villa è stata progettata per l'affitto turistico ed è composta da cinque ampie camere, ciascuna con il proprio bagno, e da una serie di altri locali funzionali. Sottolineiamo in particolare le grandi pareti di vetro sulla parte anteriore della villa, che forniscono all'edificio molta luce naturale e una bellissima vista sul mare e sul Quarnero. Per maggiori informazioni o per un tour non esitate a contattarci!

ID CODE: 100-066

Dean Luić
Direktor
Mob: +385 99 214 0008
E-mail: dean@kaiser-immobilien.hr
www.kaiser-immobilien.hr
Caratteristiche
Contratto
Vendita
Tipologia
Terreno edificabile
Superficie
1.822 m²
Informazioni sul prezzo
Prezzo
€ 1.060.000
Prezzo al m²
582 €/m²
Scopri ogni angolo dell'immobile
+14
Opzioni aggiuntive

Contatta l'inserzionista

Oppure