Appartamento Glavani, Kostrena, Kostrena

€ 850.000
5
209 m²
2
No
Terrazzo

Nota

Annuncio aggiornato il 17/02/2026
Descrizione

This description has been translated automatically and may not be accurate

riferimento: 129-55

Kostrena, Glavani - appartamento con quattro camere da letto con piscina e giardino in un nuovo edificio

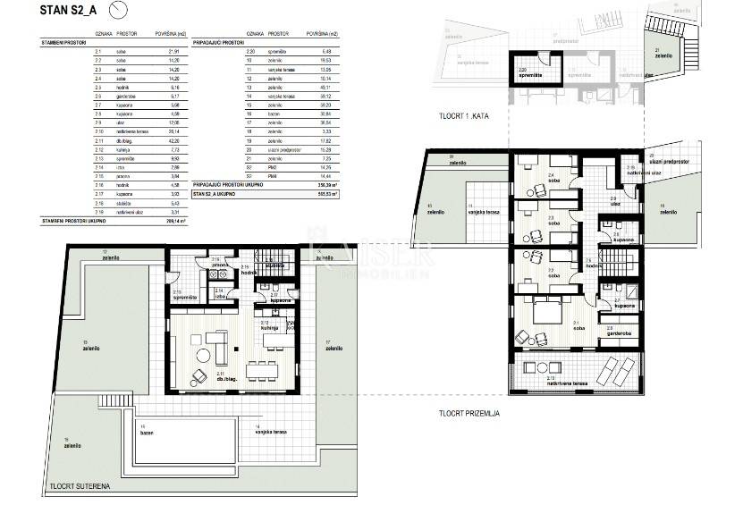
Kaiser Immobilien offre un'esclusiva proprietà moderna a Kostrena: un appartamento S2-D di 164,90 m² con piscina privata e una splendida vista sul Golfo del Quarnero. Nel tranquillo villaggio di Glavani a Kostrena, circondato dal verde e dall'atmosfera mediterranea, si trova questo lussuoso appartamento che unisce l'espressione architettonica contemporanea, la costruzione di alta qualità e il massimo comfort. L'ampio interno di 164,90 m² è concepito come un trilocale con soggiorno, bagni moderni, un WC aggiuntivo, una cabina armadio e pratici locali di servizio. La zona giorno open space con cucina e sala da pranzo emana luce ed eleganza, e le ampie vetrate offrono una vista spettacolare sul mare e sulle isole del Quarnero. L'appartamento dispone di un giardino adiacente di 182,60 m², accuratamente curato e impreziosito da una piscina privata di 17,64 m², che offre una sensazione di completa privacy e tranquillità. Particolare attenzione è stata posta alla selezione dei materiali e alla tecnologia costruttiva: sono stati utilizzati solo materiali di alta qualità e l'edificio è dotato di riscaldamento a pavimento tramite pompa di calore, aria condizionata, parquet a tre strati, ceramiche di altissima qualità e serramenti in alluminio con ampie superfici vetrate che forniscono ulteriore calore e luce agli spazi. L'appartamento dispone di due posti auto e di un ripostiglio, e l'intero progetto si distingue per il design e l'architettura ben studiati che garantiscono un valore a lungo termine e un elevato livello di comfort abitativo. La posizione a Kostrena coniuga perfettamente tranquillità e privacy con la vicinanza di tutti i servizi necessari per la vita moderna. Nelle immediate vicinanze si trovano scuole, asili, negozi, passeggiate, piste ciclabili e spiagge ben curate, mentre il centro di Fiume è a soli dieci minuti di auto. Kostrena è nota per la sua splendida costa, il lungo lungomare e il paesaggio mediterraneo che garantisce un'elevata qualità della vita durante tutto l'anno. Oltre agli ottimi collegamenti con Fiume e l'intero Quarnero, Kostrena si trova a una distanza ideale dalle principali città europee. Lubiana dista circa 130 chilometri, Trieste 90 chilometri, Zagabria 160 chilometri, Venezia 220 chilometri, mentre Monaco e Vienna distano circa 500 chilometri. Grazie all'autostrada e alla vicinanza dell'aeroporto di Fiume, viaggiare è facile e veloce, il che aumenta ulteriormente l'attrattiva di questa posizione. Questa proprietà rappresenta la perfetta combinazione di lusso, comfort ed eleganza moderna. È ideale per la vita familiare, ma anche come investimento per il turismo d'élite. Kaiser Immobilien - il vostro partner affidabile nella ricerca di una casa con vista mare. La commissione dell'agenzia per l'acquirente è del 3% + IVA. La commissione copre tutti i servizi relativi all'acquisto e viene corrisposta solo in caso di acquisto di un immobile, al momento della conclusione dell'atto giuridico. Per ulteriori informazioni rivolgersi a: Marijana Cuculić Telefono: +385981869950 E-mail: marijana.cuculic@kaiser-immobilien.hr Nelica Arsenijević Telefono: +385919254809 E-mail: nelica@kaiser-immobilien.hr

ID CODE: 129-55

Nelica Arsenijević
Agent s licencom u posredovanju u prometu nekretnina
Mob: +385919254809, +385995677888
E-mail: nelica@kaiser-immobilien.hr
www.kaiser-immobilien.hr

Marijana Svijetlana Cuculić
Agent posredovanja u prometu nekretnina
Mob: +385981869950, +385995677888
E-mail: marijana.cuculic@kaiser-immobilien.hr
www.kaiser-immobilien.hr
Caratteristiche
Tipologia
Appartamento
Contratto
Vendita
Ascensore
No
Superficie
209 m²
Locali
5
Camere da letto
4
Bagni
2
Balcone
No
Terrazzo
Box, posti auto
2 posto auto
Riscaldamento
Autonomo, ad aria
Climatizzazione
Autonomo, freddo/caldo
Informazioni sul prezzo
Prezzo
€ 850.000
Prezzo al m²
4.067 €/m²
Efficienza energetica
  • Anno di costruzione

    2026
  • Riscaldamento

    Autonomo, ad aria
  • Climatizzatore

    Autonomo, freddo/caldo
  • Certificazione energetica

    Non classificabile
Scopri ogni angolo dell'immobile
+7
Opzioni aggiuntive

Contatta l'inserzionista

Oppure