Quadrilocale Poreč, Luka, Parenzo

€ 355.000
4
99 m²
3
T
No
Terrazzo

Nota

Annuncio aggiornato il 21/04/2026
Descrizione

This description has been translated automatically and may not be accurate

riferimento: 114-180

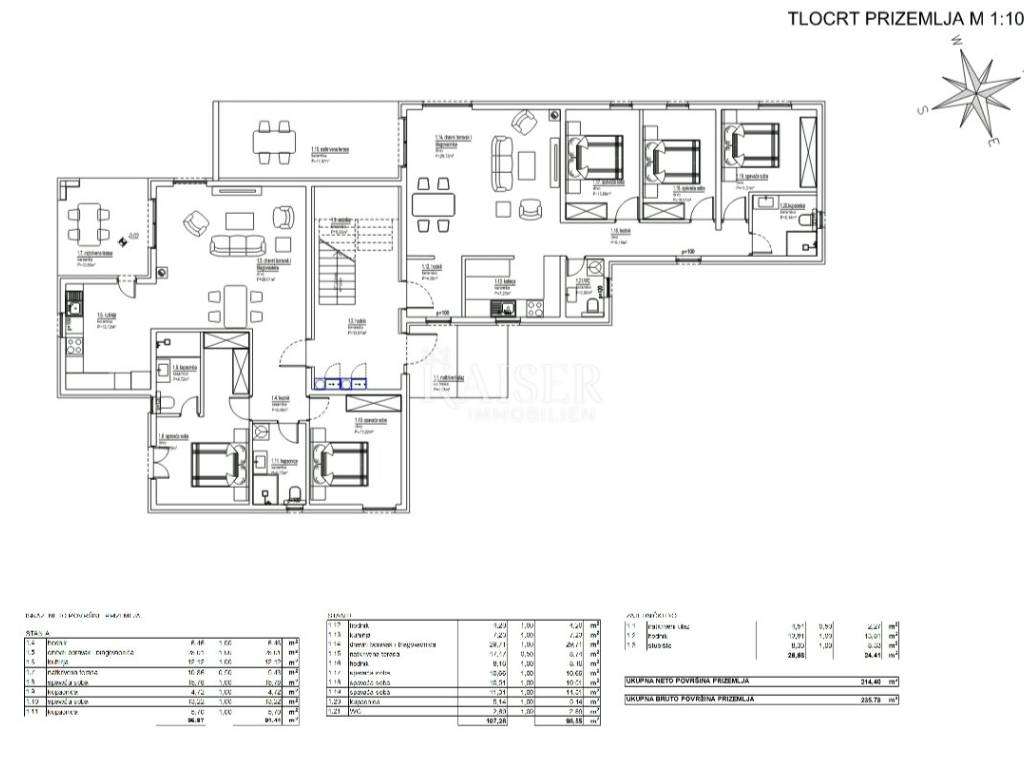
Istria, Parenzo - appartamento al piano terra con tre camere da letto, a 800 m dal mare

Kaiser Immobilien offre un moderno e spazioso appartamento con tre camere da letto situato al piano terra di un edificio di nuova costruzione di qualità, a soli 800 metri dal mare e a tre chilometri dal centro di Parenzo. L'immobile si trova in un tranquillo quartiere di nuova costruzione, circondato da infrastrutture moderne, il che rende questa posizione ideale sia per una confortevole vita familiare che per un investimento in affitto turistico. L'appartamento ha una superficie utile netta totale di 99 m² ed è composto da un ingresso, un ampio soggiorno con cucina e sala da pranzo in un open space di 37 m², tre comode camere da letto, un bagno moderno e un ulteriore bagno per gli ospiti. Il soggiorno si apre su una terrazza coperta di 17 m², che conduce a un giardino privato di 84 m². Il giardino offre lo spazio perfetto per rilassarsi, far giocare i bambini o organizzare una zona pranzo all'aperto. Gli interni sono stati accuratamente progettati con particolare attenzione alla funzionalità, alla luce naturale e al comfort della vita quotidiana. L'edificio è costruito in muratura classica con un elevato livello di isolamento termico e acustico e l'appartamento è arredato secondo gli standard moderni. Il riscaldamento a pavimento in tutte le stanze è garantito da un sistema a pompa di calore e, per un maggiore comfort, sono presenti condizionatori in soggiorno e in tutte le camere da letto. Gli infissi sono in PVC a tre strati con tapparelle elettriche e zanzariere, e la sicurezza è garantita da una porta d'ingresso antieffrazione e da un videocitofono. Gli infissi interni sono di alta qualità e il valore aggiunto dell'appartamento è dato da una canna fumaria che consente l'installazione di un camino o di una stufa a combustibile solido. L'appartamento dispone di un posto auto assegnato, incluso nel prezzo, e un grande vantaggio al momento dell'acquisto è che l'acquirente non paga il 3% di imposta sulla proprietà. Tutti i servizi necessari come negozi, scuole, asili, ristoranti e spiagge si trovano nelle immediate vicinanze. Questa proprietà rappresenta un'opportunità eccezionale per chiunque cerchi un appartamento di qualità con uno spazio esterno privato, in un ambiente tranquillo e in una posizione attraente in riva al mare. Che stiate cercando una casa per la vostra famiglia o un investimento con un alto potenziale di rendimento tramite affitti turistici, questo appartamento offre una combinazione di design moderno, funzionalità e comfort della vita quotidiana. Per ulteriori informazioni e per organizzare una visita, contattateci con fiducia: Dean Cvitko E-mail: dean.cvitko@kaiser-immobilien.hr Tel: +385915284449 http://kaiser-immobilien.hr/

ID CODE: 114-180

Dean Cvitko
Agent s licencom u posredovanju u prometu nekretnina
Mob: +385915284449, +385995677888
E-mail: dean.cvitko@kaiser-immobilien.hr
www.kaiser-immobilien.hr
Caratteristiche
Tipologia
Appartamento
Contratto
Vendita
Piano
Piano terra
Piani edificio
2
Ascensore
No
Superficie
99 m²
Locali
4
Camere da letto
3
Bagni
3
Balcone
No
Terrazzo
Box, posti auto
2 posto auto
Riscaldamento
Autonomo, ad aria
Climatizzazione
Autonomo, freddo/caldo
Informazioni sul prezzo
Prezzo
€ 355.000
Prezzo al m²
3.586 €/m²
Efficienza energetica
  • Anno di costruzione

    2025
  • Riscaldamento

    Autonomo, ad aria
  • Climatizzatore

    Autonomo, freddo/caldo
  • Certificazione energetica

    Non classificabile
Scopri ogni angolo dell'immobile
+20
Opzioni aggiuntive

Contatta l'inserzionista

Oppure