Quadrilocale Maksimir, Dotrščina, Zagabria

€ 350.000
4
62 m²
1
T
No

Nota

Annuncio aggiornato il 17/02/2026
Descrizione

This description has been translated automatically and may not be accurate

riferimento: 137-120

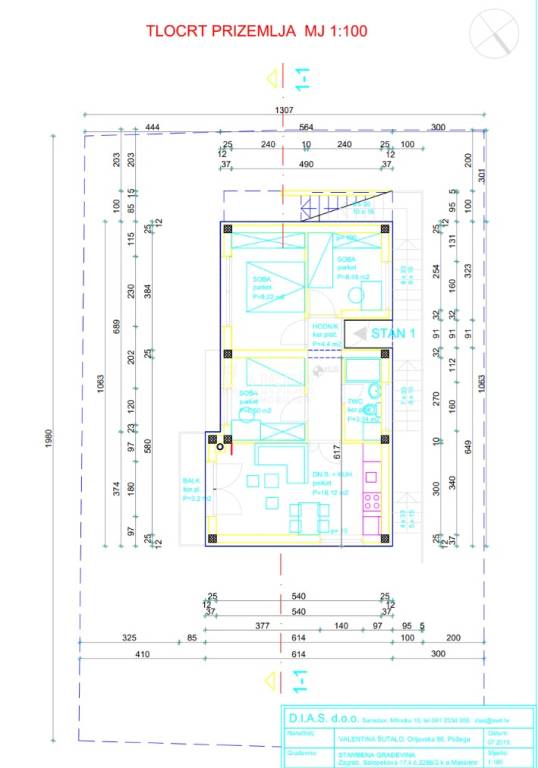
Appartamento Maksimir, 62,74m2

Kaiser Immobilien è orgogliosa di presentare: Ampio appartamento con tre camere da letto al piano terra e balcone, Maksimir, Zagabria
Nella tranquilla e verdeggiante zona di Maksimir, quartiere di Zagabria, si trova questo edificio residenziale con due unità abitative separate. La posizione offre la perfetta combinazione di comfort urbano e vicinanza alla natura, rendendolo un luogo ideale per la vita familiare. Sono disponibili due appartamenti: uno al piano terra e un duplex che si estende al primo piano e alla mansarda.

Kaiser Immobilien è orgogliosa di offrire questo appartamento con tre camere da letto, ottimamente arredato, situato al piano terra dell'edificio. L'appartamento offre funzionalità e comfort, con accesso diretto al balcone, che offre un angolo tranquillo per il relax.
INFORMAZIONI SULL'APPARTAMENTO:
L'appartamento si trova al piano terra e offre una disposizione pratica, ideale per una famiglia o una coppia.
Soggiorno e cucina: 24,19 m² - Ampio open space per socializzare e svolgere le attività quotidiane.
Camera da letto 1: 9,22 m²
Camera da letto 2: 9,45 m²
Camera da letto 3: 9,00 m²
Bagno: 3,28 m²
Corridoio: 4,40 m²
Balcone: 3,20 m²
POSIZIONE E VANTAGGI AGGIUNTIVI:
Posizione: Situato nelle immediate vicinanze del parco Maksimir, offre accesso a tutti i servizi cittadini: scuole, asili, negozi e trasporti pubblici.
Ambiente tranquillo: La strada offre pace e privacy, lontano dal caos cittadino, ma vicino a tutto ciò di cui avete bisogno.
Questo appartamento è un'ottima opportunità per chi cerca uno spazio abitativo di qualità in una delle zone più ambite di Zagabria.
La commissione d'agenzia per l'acquirente è del 3% + IVA e viene pagata, in caso di acquisto immobiliare, alla stipula del primo atto notarile. La visione dell'immobile è possibile solo previa firma di un contratto di mediazione immobiliare.
Per visitare l'immobile di persona, si prega di contattare:
Joško Bašić
E-mail: josko@kaiser-immobilien.hr
Tel: +385-91-511-2993
http://kaiser-immobilien.hr/

ID CODE: 137-120

Joško Bašić
Agent posredovanja u prometu nekretnina
Mob: +385915112693, +385995677888
E-mail: josko@kaiser-immobilien.hr
www.kaiser-immobilien.hr
Se vuoi saperne di più, puoi parlare con Joško Bašić.
Caratteristiche
Tipologia
Appartamento
Contratto
Vendita
Piano
Piano terra
Piani edificio
1
Ascensore
No
Superficie
62 m²
Locali
4
Camere da letto
3
Bagni
1
Balcone
No
Terrazzo
No
Informazioni sul prezzo
Prezzo
€ 350.000
Prezzo al m²
5.645 €/m²
Efficienza energetica

Consumo di energia

A+

Planimetria
Scopri ogni angolo dell'immobile
+4
Opzioni aggiuntive

Contatta l'inserzionista

Oppure